Za ta projekt smo se odpravili na svež gorenjski zrak. Zakonski par v zrelih letih si je želel prenoviti 30 let star družinski vikend. Tloris obstoječe hiše je bil nefunkcionalen; prostori so bili premajhni ter razporejeni po različnih etažah, povezovale so jih ozke in nerodne stopnice. Poleg tega je imel vikend več tehničnih težav – izbira slabih gradbenih materialov, težave z zamakanjem in posledično se je v hiši pojavila vlaga. Dilema je torej bila, ali se lotiti prenove obstoječe hiše ali začeti na novo. Čeprav smo si želeli, da bi objekt lahko prenovili je analiza pokazala, da bi bilo stroškov preveč, pridobili pa bi premalo, zato smo predlagali, da staro hišo porušimo. Tako smo lahko zasnovali novo, bistveno bolj funkcionalno in kakovostno “vikend” hiško.

O PROJEKTU

Proračun: 250.000 EUR

Načrtovanje: 12 mesecev

Čas izvedbe: 12 mesecev

Leto: 2020

Lokacija se nahaja na parceli, ki je bila že lepo ozelenjena. V teren zato nismo hoteli pretirano posegati in smo novogradnjo raje izvedli na (skoraj) istem mestu. S tem smo lahko ohranili tudi obstoječi dostop do hiše. Hiša se odpira proti jugu, kjer je čudovit razgled na Ljubljansko kotlino.

Prejšnja hiša

Nova hiša

Hišo na levi strani zaključuje lesena lopa z nadstreškom, na desni strani pa se izteka v leseno teraso z letno kuhinjo in nadstreškom. Ker se teren za hišo hitro vzpenja, smo v zaledje postavili oporni zid. Le-ta se na terasi zaključi z dvema lesenima koritoma iz hrastovih tramov. Koriti služita več namenom, saj premoščata višinsko razliko v terenu, nudita možnost zasaditve zelišč, sta dekorativen element na terasi, hkrati pa lahko na njunih masivnih robovih tudi posedimo.

Nekaj utrinkov z gradbišča.

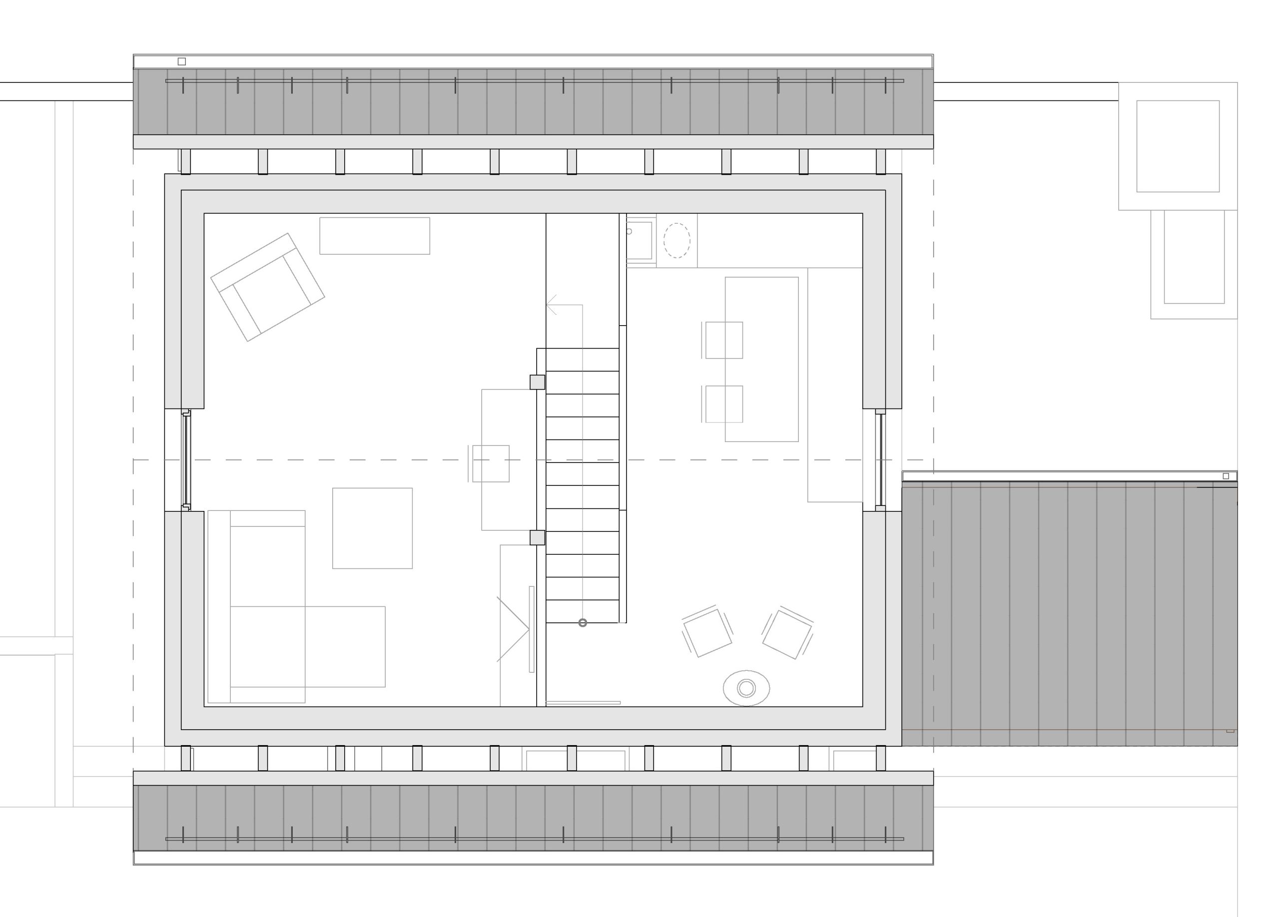
Pri zasnovi tlorisa smo razmišljali predvsem o tem, da bo hiša še dolgo v uporabi, torej primerna za bivanje tudi v kasnejšem življenjskem obdobju. Zasnovan je tako, da ima v eni etaži vse bistvene bivalne prostore. Dodaten bivalni prostor pa je umeščen v galerijo.
Glede na manjšo kvadraturo smo se še toliko bolj potrudili, da je izkoristek prostora maksimalen in da v hiši ni občutka utesnjenosti. Za občutek domačnosti smo uporabili naravne materiale, prevladuje les.

Naš glavni cilj je bil, da prostori ne delujejo utesnjeno ter da so v osnovi enostavni, a hkrati še vedno udobni, prijetni in topli. Dvovišinski bivalni prostor, s stopnicami iz masivnega hrastovega lesa, ki vodijo v galerijo, pričarajo občutek večje prostornosti.

Umestitev kuhinje je nevsakdanja. Za maksimalen izkoristek prostora smo jo umestili pod stopnice, kjer so pod nižjim delom skriti hladilnik ter omare za shranjevanje. Kjer je višine dovolj pa je majhen, a funkcionalen delovni pult z vsemi potrebnimi aparati. Kuhinja tako ne zavzema veliko prostora, ki smo ga raje namenili večjemu prostoru za druženje s tradicionalnim jedilnim kotom in kaminom, ki sta si ga naročnika tako želela.

V pritličju so poleg dnevnega prostora še predprostor, kopalnica in spalnica, ki se nahaja nasproti vhoda. Vsi prostori so opremljeni v svetlih tonih, barvno shemo smo popestrili z manjšimi temnejšimi elementi, kot so ročaji na omarah in svetila, piko na i pa prispevajo dodatki, kot npr. posteljnina, okrasni predmeti …

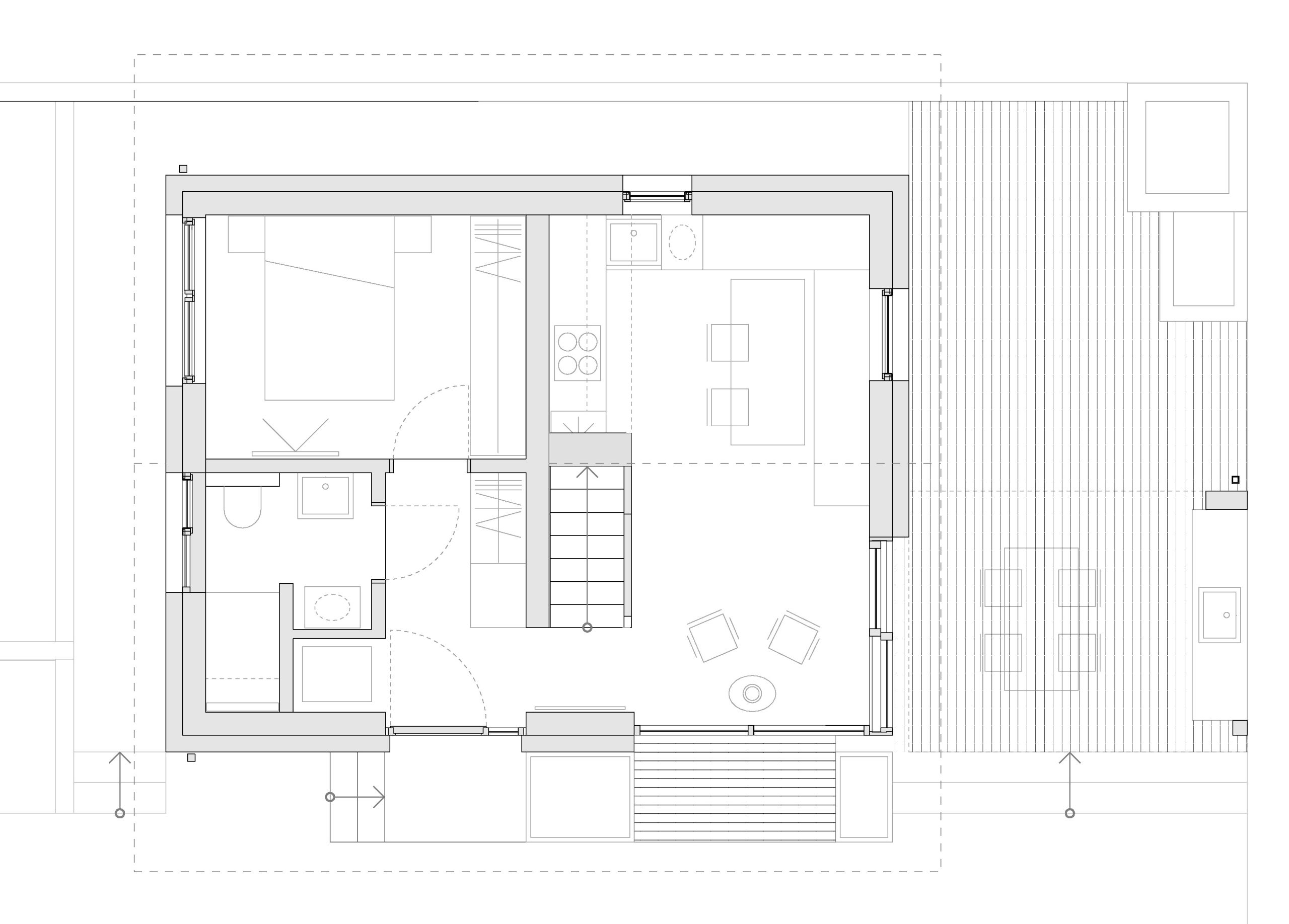
Po stopnicah se povzpnemo v galerijski prostor, kamor smo umestili dnevno sobo z delovnim kotičkom, ki se zlahka prelevi v spalnico za goste. V strešnem delu smo pustili vidne elemente strešne konstrukcije, saj popestrijo mansardni prostor. Na belem stropu tako izstopajo lesene škarje ter dva lesena stebra, ki podpirata strešno konstrukcijo.

Naročnika sta želela imeti svetle in preprosto opremljene prostore. Zelo jima je bil všeč tudi naravni (svetel) izgled lesa. Ker so prostori dokaj majhni, smo za osnovno lupino (stene, tla in strope) izbrali čim manj izstopajoče obdelave. Stene in stropi so zato bele barve, tla pa so obložena z oljenim hrastovim parketom v kombinaciji s svetlo keramiko v videzu kamna. Pohištvo je prav tako pretežno v beli barvi, ki smo jo kombinirali s hrastovim lesom v naravni barvi. Iz starega vikenda smo ohranili tudi nekaj zanimivih kosov pohištva, ki so obnovljeni ponovno zaživeli v novem prostoru.

Več o projektu si lahko ogledate v galeriji.