Našo pomoč je poiskala štiričlanska družina, ki je bila v pričakovanju petega člana. Že nekaj let so živeli v novejšem večstanovanjskem bloku. Z leti bivanja v njem je rasla tudi želja po prenovi stanovanja. Vedeli so, kaj si želijo v stanovanju spremeniti, katere so kvalitete, ki si jih želijo ohraniti in kaj v stanovanju pogrešajo. Dobro poznavanje prostora, dinamike družine ter stila, ki jim je všeč in v katerem se počutijo domače, nas je pripeljalo do želenega rezultata.
O PROJEKTU
Proračun: 50.000 EUR
Načrtovanje: 5 mesecev
Čas prenove: 3 mesece
Leto: 2019
Največja želja mlade družine je bila, da pridobijo še eno sobo, kamor bi umestili spalnico, saj je bila ta prej del osrednjega bivalnega prostora. Vedeli so, da se bo z novim članom dinamika v prostoru spremenila in da bosta mamica in malček potrebovala nekaj zatišja za uspavanje, hranjenje… Šoloobvezna otroka sta že imela lepo, funkcionalno izdelano sobo, zato ta ni bila predmet naše prenove. Družina pa je imela tudi nekaj večjih kosov pohištva, ki jih je želela ohraniti. Tako je bilo potrebno dimenzije in stil opreme, kot so sedežna garnitura, jedilna miza, stoli in nekaj drugih večjih kosov upoštevati že pri sami zasnovi.


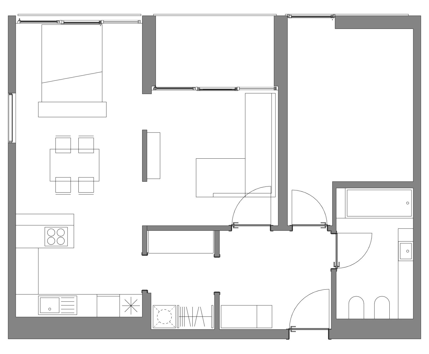
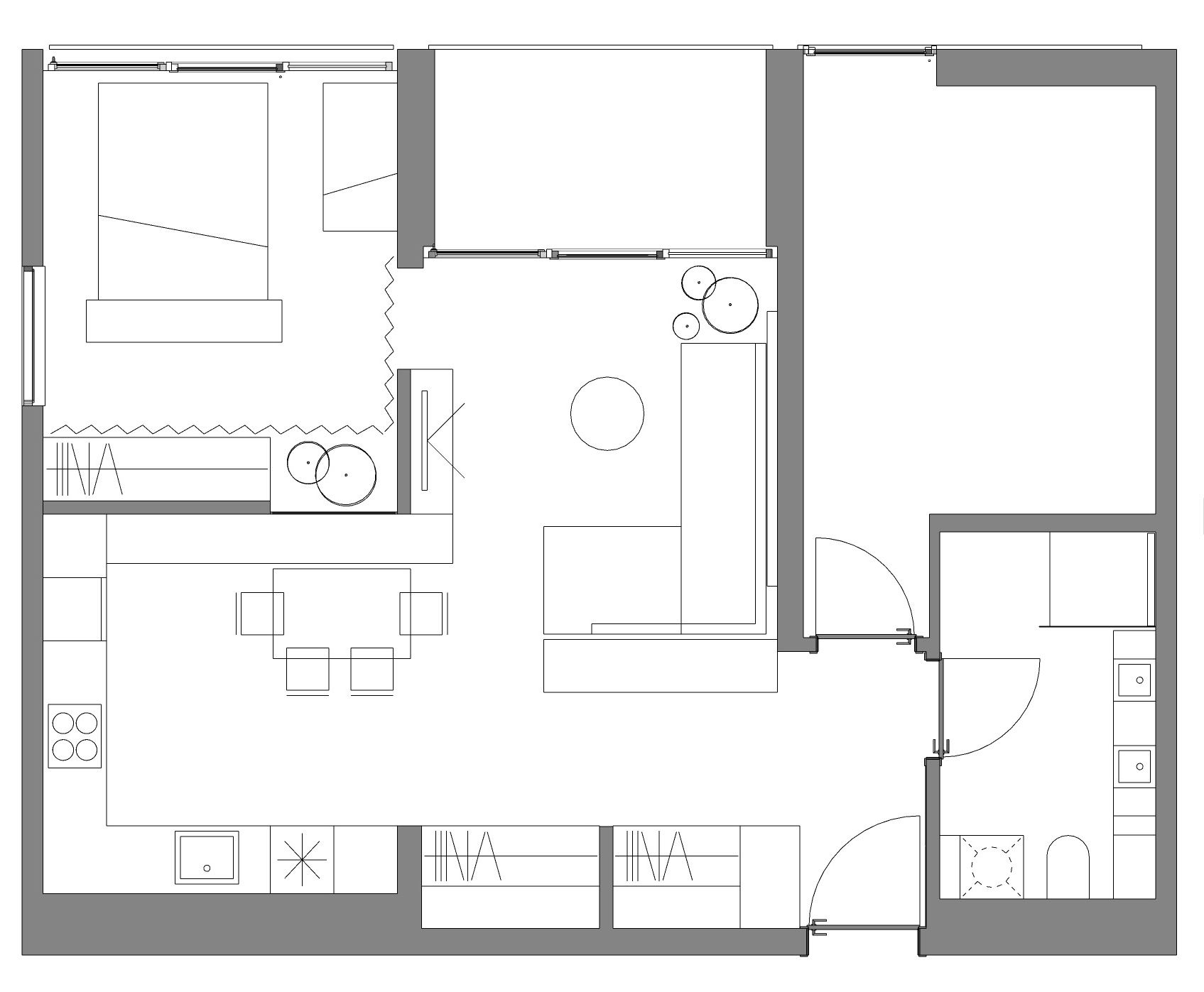
Tloris stanovanja prej in potem.
Največji problem, ki smo ga prepoznali v stanovanju je bil utiliti, skozi katerega je vodil prehod v kuhinjo. Ta je bil popolnoma drugačnega značaja kot ostalo stanovanje, obenem pa je popolnoma razdelil osrednji prostor na kuhinjo z jedilnico in ločeno dnevno sobo. Ker so si naročniki želeli ta dva prostora čim bolj združiti, smo utiliti nadomestili z velikimi, globokimi omarami, kjer je zelo veliko prostora za shranjevanje. Dnevno sobo smo delno pregradili z visokim nizom omar z nišami, do katere se lahko dostopa iz obeh smeri. Ta preprečuje obiskovalcem pogled v zasebnost stanovalcev iz smeri vhodnih vrat, hkrati pa je zaradi transparentnosti še vedno občutiti enotnost prostora. Pralni in sušilni stroj smo prestavili v omaro v kopalnici na mesto, kjer je bil prej bide. Kuhinja se nadaljuje z nizom visokih belih omar tako, da se prehod med hodnikom in kuhinjo popolnoma zabriše in se prostor zlije v celoto.

Spalnica je postala ločen prostor, del stene smo zasteklili in tako omogočili, da svetloba prehaja v kuhinjo in jedilnico. Pogled v spalnico je moč zastreti z zaveso. Klop iz jedilnice se nadaljuje v dnevno sobo ter dobi funkcijo omarice za televizijo. Ker ima družina veliko slik, ki jih radi razstavijo, smo v dnevni sobi predvideli ozke poličke za slike. V poličke so vgrajeni led trakovi, ki ustvarjajo prijetno ambientalno svetlobo.

Kopalnica je bila deležna celovite prenove. Obstoječe keramične ploščice smo odstranili in zamenjali z mikrotoppingom ter namesto kopalne kadi umestili walk-in tuš. Dodali smo še en umivalnik, ki je pri veččlanski družini skoraj nujen. V kopalnico in na hodnik smo umestili dve večji ogledali, ki optično povečata prostor.

Več o projektu si lahko ogledate v galeriji:


















