Redka so stanovanja, namenjena oddajanju, kjer bi se lastniki odločili za celovito prenovo, s pohištvom po meri. Zdi se jim, da bodo najemniki lahko naredili veliko škode, sploh če so najemojemalci družine z otroci. Zaradi tega v stanovanja minimalno ali pa skoraj nič ne investirajo. Pa vendar temu vedno ni tako. Tudi najemniki si želijo lepih stanovanj, za katere so pripravljeni nekoliko več odšteti in za njih skrbeti, kot bi skrbeli za svoj dom.
O PROJEKTU
Proračun: 60.000 EUR
Načrtovanje: 6 mesecev
Čas prenove: 3 mesece
Leto: 2018
Na nas se je obrnila gospa, ki se je odločila prenoviti družinsko hišo iz 70. let. Mansardni del je želela prenoviti v garsonjero za eno izmed treh hčera, medtem ko se je za pritlični del s prvo etažo odločila, da ga bo po obnovi oddajala. Gospa je našla biro, ki naj bi jim pomagal hišo v celoti prenoviti tako, da se jim s projektom ne bi bilo potrebno ukvarjati. Poleg zahtevne službe si tega niti ni želela, saj je vedela, da bi ji to vzelo preveč časa, volje in živcev. A žal temu ni bilo tako. Zato je bila primorana, da stvari ponovno vzame v svoje roke. Takrat je po naključju našla nas, ki speljemo projekte od ideje do izvedbe. Sprva precej obupana, nam je z rahlim dvomom zaupala dokončanje del v hčerini mansardi. Ko je videla, da se stvari odvijajo po planih in v pravo smer se je dvom razblinil. Takrat nam je prepustila proste roke pri načrtovanju in prenovi stanovanja za oddajanje.


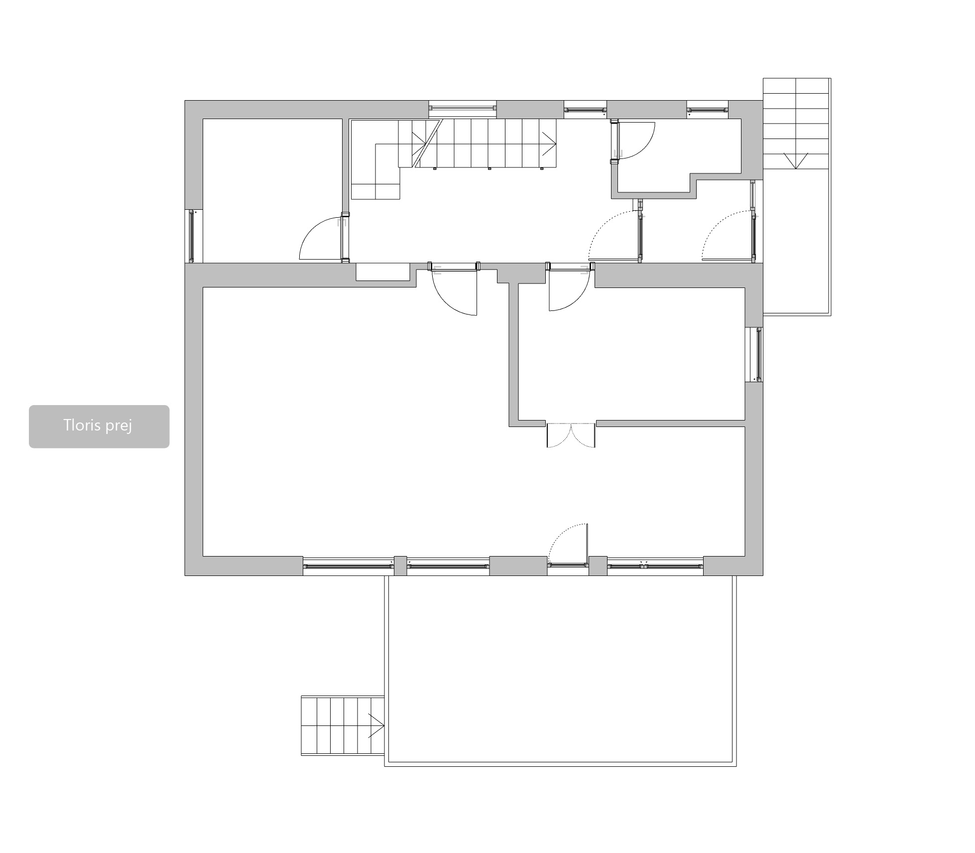
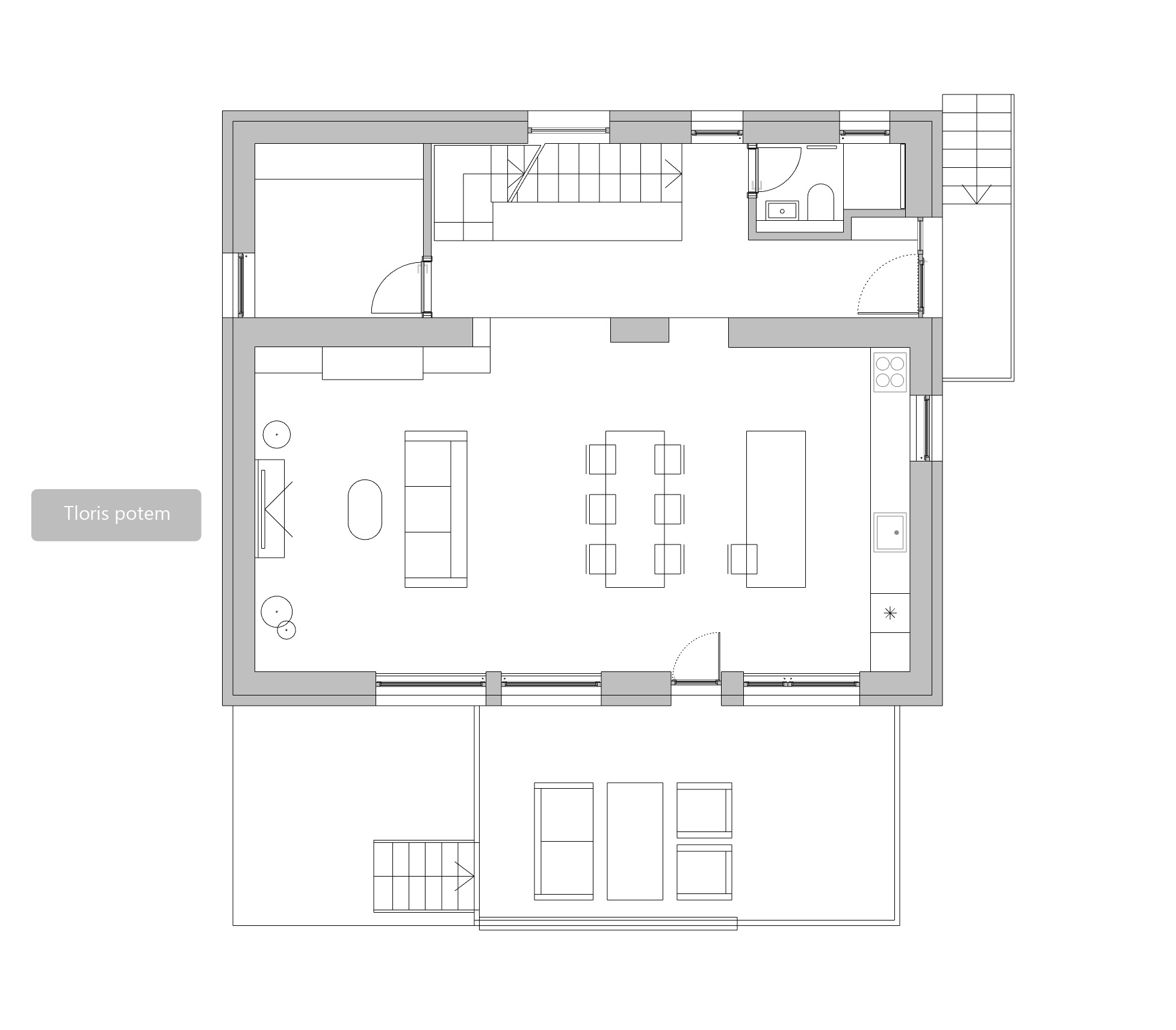
Tloris visokega pritličja prej in potem.
Prostore v stanovanju smo na novo organizirali tako, da lahko dom sprejme štiričlansko družino. Te smo prilagodili sodobnemu načinu življenja. Dnevno sobo, jedilnico in kuhinjo v visokem pritličju smo združili v velik prostor, kar družini omogoča, da je čim bolj povezana v kratkih popoldanskih in večernih urah. Kuhanje, igra, poležavanje na kavču… se prepletajo in kličejo po interakciji. Iz dnevnega prostora se dostopa na veliko teraso, kjer bodo lahko novi stanovalci v poletnih dneh uživali v senci trte.

Z bivalnim delom se po prenovi povezuje tudi hodnik, ki po novem ni namenjen le povezovanju med prostori temveč deluje kot podaljšek dnevnega prostora. Stopnišče z brisoleji daje stanovanju moderen pridih, hkrati pa deluje lahkotno in zračno. Stopnice vodijo navzgor v prvo nadstropje, kjer se nahajajo spalnica, otroška soba za dva otroka in kopalnica, ter navzdol v podkleteni del, kjer se nahaja utility.

Projekt so predstavili v oddaji Ambienti:
Galerija slik:


















