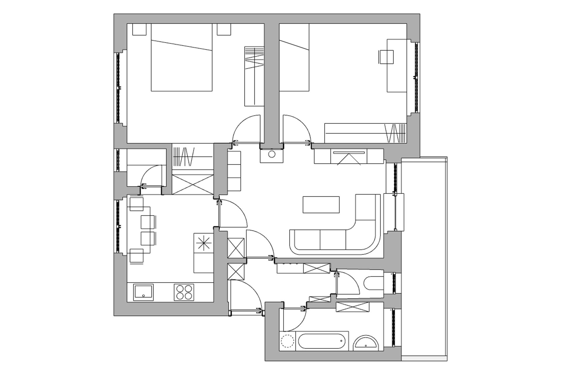
Tokrat smo se lotili prenove 77 kvadratnih metrov velikega trosobnega stanovanja z balkonom, ki se nahaja v leta 1952 zgrajenem bloku. Stanovanje je imelo tradicionalno razporeditev prostorov, ki je bila značilna za čas gradnje. Naša glavna naloga pri načrtovanju je bila, da bo prenova stanovanja ustrezala sodobnim bivanjskim zahtevam.


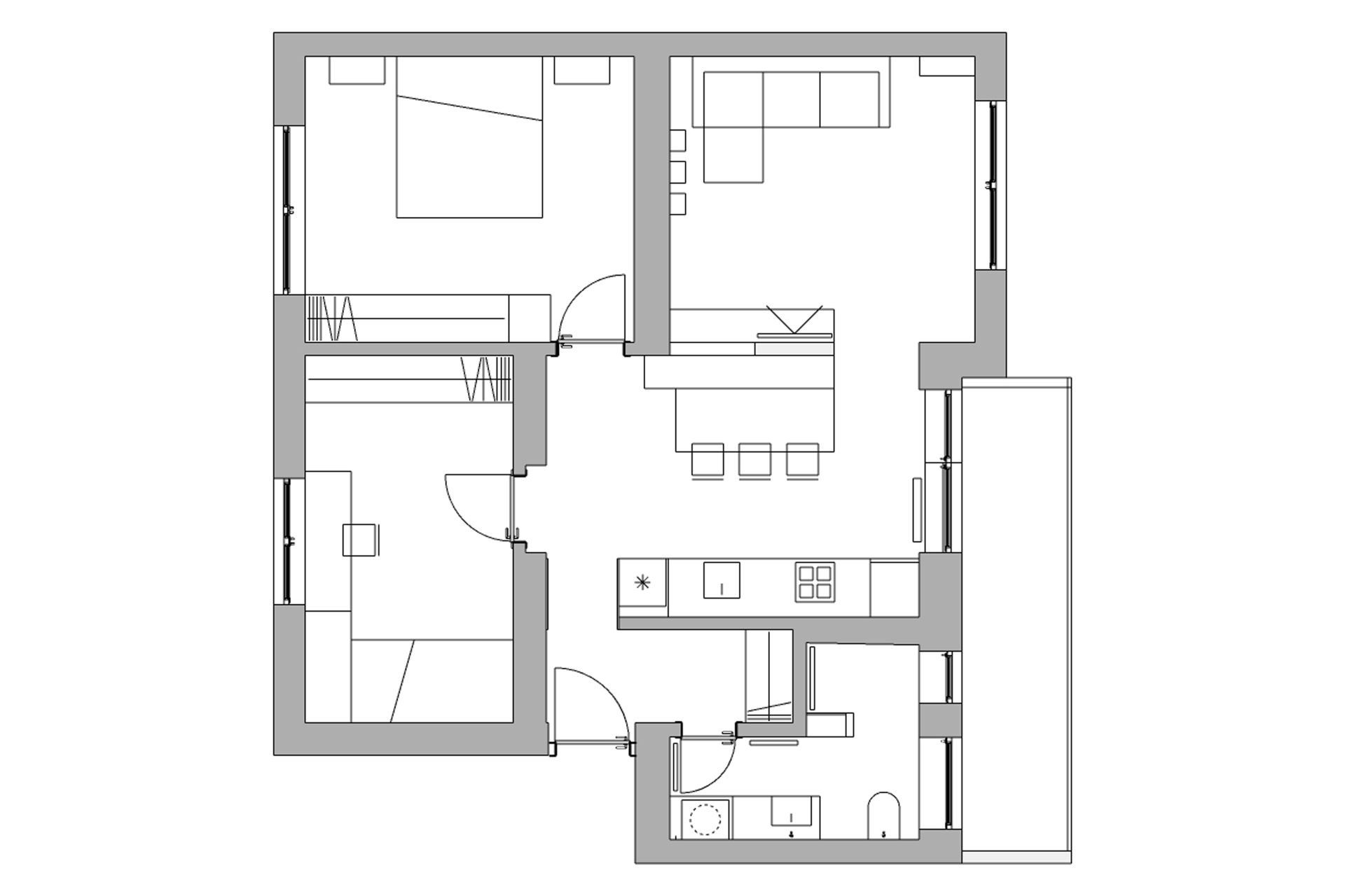
Tloris stanovanja pred in po prenovi.
Po izmeri stanovanja smo se lotili iskanja prave tlorisne rešitve. Povezali smo bivalne prostore in jih tako približali sodobnemu načinu bivanja. Nekdanjo dnevno in otroško sobo smo združili v velik povezan prostor, v katerega smo umestili kuhinjo s prostorno jedilnico ter dnevno sobo. Na mestu porušene stene smo morali ohraniti del zidu, ki skupaj z lesenimi lamelami ločuje dnevno sobo od jedilnice in kuhinje. S tem smo povečali stopnjo intime v dnevni sobi, hkrati pa ustvarili nekaj dinamike v prostoru.


Jedilnica z dnevno sobo pred in po prenovi.
Kljub delni fizični ločitvi prostora funkcionirata kot povezana celota, kar povečuje tudi povezanost družinskih članov. S to združitvijo je prostor pridobil več svetlobe, ki sedaj prehaja iz dnevnega dela v kuhinjski del in obratno. Obenem so vsi bivalni prostori dobili pogled na lepšo stran bloka, t.j. v naravo, medtem ko so spalni prostori na strani, ki gleda proti garažam.


Kuhinja pred in po prenovi.
V nekdanji kuhinji z jedilnico smo predvideli otroško sobo, ki pa lahko glede na želje in potrebe uporabnika postane tudi kabinet, domača pisarna, soba za goste, manjša telovadnica ali prostor za meditacijo. Shrambo, ki je bila nekoč del kuhinje smo porušili in na njen račun povečali prostor.
Spalnica je ostala v istem prostoru, podobna pa je tudi postavitev postelje in omar. Niz garderobnih omar je zaključen z lesenim prehodom, ki se ponovi na prehodu med kuhinjo in predprostorom.
WC in kopalnico smo združili v kopalnico s straniščem. Kopalno kad smo zamenjali s tušem, ki je svoje mesto dobil v nekdanjem stranišču, na mestu nekdanje kopalnice pa smo našli prostor za utility omaro s pralnim strojem, omarico z nadpultnim umivalnikom, ozko ogledalo, ki sega od tal do stropa in WC školjko.

S prenovo smo ustvarili kvaliteten bivalni prostor, ki ima sedaj lepše poglede skozi okno, zmanjšali število vrat za polovico in s tem povečali občutek zračnosti.
Več o projektu si lahko ogledate v galeriji.





















