Lastnik hiše se je na nas obrnil z željo, da razširimo njegovo fizioterapevtsko ambulanto. Začel je z manjšim prostorom v hiši, ki pa je z rastjo prakse postal premajhen. Prav tako ga je motilo, da je imela ambulanta skupni vhod s stanovanjskim delom hiše. Naš cilj je bil pridobiti ločeno enoto.
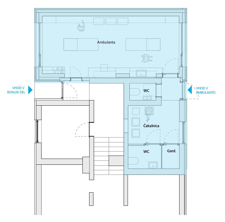
Da bi ambulanto večali v obstoječi hiši, ni prišlo v poštev, zato smo se odločili, da hiša dobi prizidek. Pri sami postavitvi prizidka smo bili omejeni z bližino ceste. Ta je pogojevala, kako velik objekt smo lahko umestili, saj so ob cesti potrebovali še parkirišče. Izkazalo se je, da je prostora ravno dovolj, da je poleg ambulante prostor še za čakalnico, sanitarije in garderobo za terapevta.
Prednosti novega prizidka sta tudi ločena vhoda in to vsak na drugi strani objekta – tako se stranke ne srečujejo z ostalimi bivajočimi v hiši. Pacienti pa imajo ob vhodu v ambulanto na voljo tudi ločeno parkirišče.
Pri razporedu opreme smo sledili želji lastnika – prostor naj ne bi deloval prenatrpano, po njem se je želel prosto gibati, stremeli smo k čim boljši funkcionalnosti. Tako smo na eno stran prostora umestili viseče omare tako visoko, da je spodaj ostalo dovolj prostora za priklop in shranjevanje aparatur.
Ob nasprotni steni prevladuje niz omaric s pisalno mizo na eni in umivalnikom na drugi strani.
Na sredini prostora je po dolžini dovolj prostora za dve fizioterapevtski mizi, ki bi ju lahko med seboj z zaveso ločili in tako obravnavali 2 pacienta naenkrat.
Naročnik je želel, da prostori delujejo svetli, a ne preveč hladni. Izbrali smo pohištvo bele barve oz. iz svetlejšega lesa, ki se lepo dopolnjuje s sivo-bež talno oblogo iz epoksija.
Prenova hiše z dograditvijo prizidka ni bila preobsežna, je pa izjemno pripomogla k izboljšanju bivalnih in delovnih pogojev ter nenazadnje tudi izboljšanju obravnave in izkušnje pacientov.
Fizioterapevt Tomaž Zamrnik iz fizioterapevtske ambulante Fiziopro je svojo izkušnjo strnil:
Arhitekti so ustvarili zelo lep, funkcionalen prostor za delo in lično čakalnico za stranke ter parkirišče. V svojih prostorih se zelo dobro počutim in v njih z lahkoto preživim velik del dneva. Vsekakor se bom še obrnil na ekipo Celovito, če bom še kdaj potreboval pomoč arhitekta.
Arhitekti so ustvarili zelo lep, funkcionalen prostor za delo in lično čakalnico za stranke ter parkirišče. V svojih prostorih se zelo dobro počutim in v njih z lahkoto preživim velik del dneva. Vsekakor se bom še obrnil na ekipo Celovito, če bom še kdaj potreboval pomoč arhitekta.
Arhitekti so ustvarili zelo lep, funkcionalen prostor za delo in lično čakalnico za stranke ter parkirišče. V svojih prostorih se zelo dobro počutim in v njih z lahkoto preživim velik del dneva. Vsekakor se bom še obrnil na ekipo Celovito, če bom še kdaj potreboval pomoč arhitekta.









