Saj veste, kako je, če kupujete nepremičnino in postrgate še zadnje zaloge, ki jih imate. Če imate pogum in srečo, si pomagate s kreditom, zaradi odplačevanja obrokov, pa vam še nekaj let kronično primanjkuje denarja za osvežitev svojega novega doma, kaj šele za kompletno prenovo. Podobno se je zgodilo eni izmed naših strank, pri kateri smo nedavno zaključili prenovo.
O PROJEKTU
Proračun: 18.000 EUR
Načrtovanje: 4 mesece
Čas prenove: 20 dni
Leto: 2016


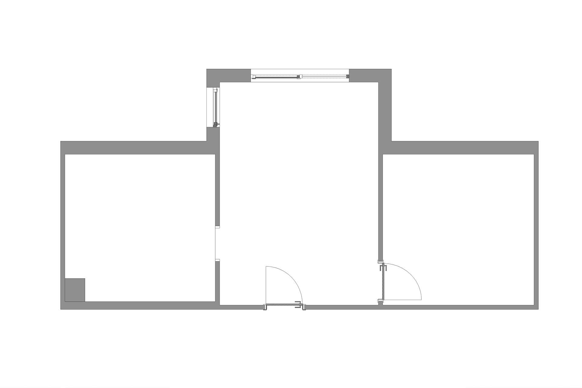
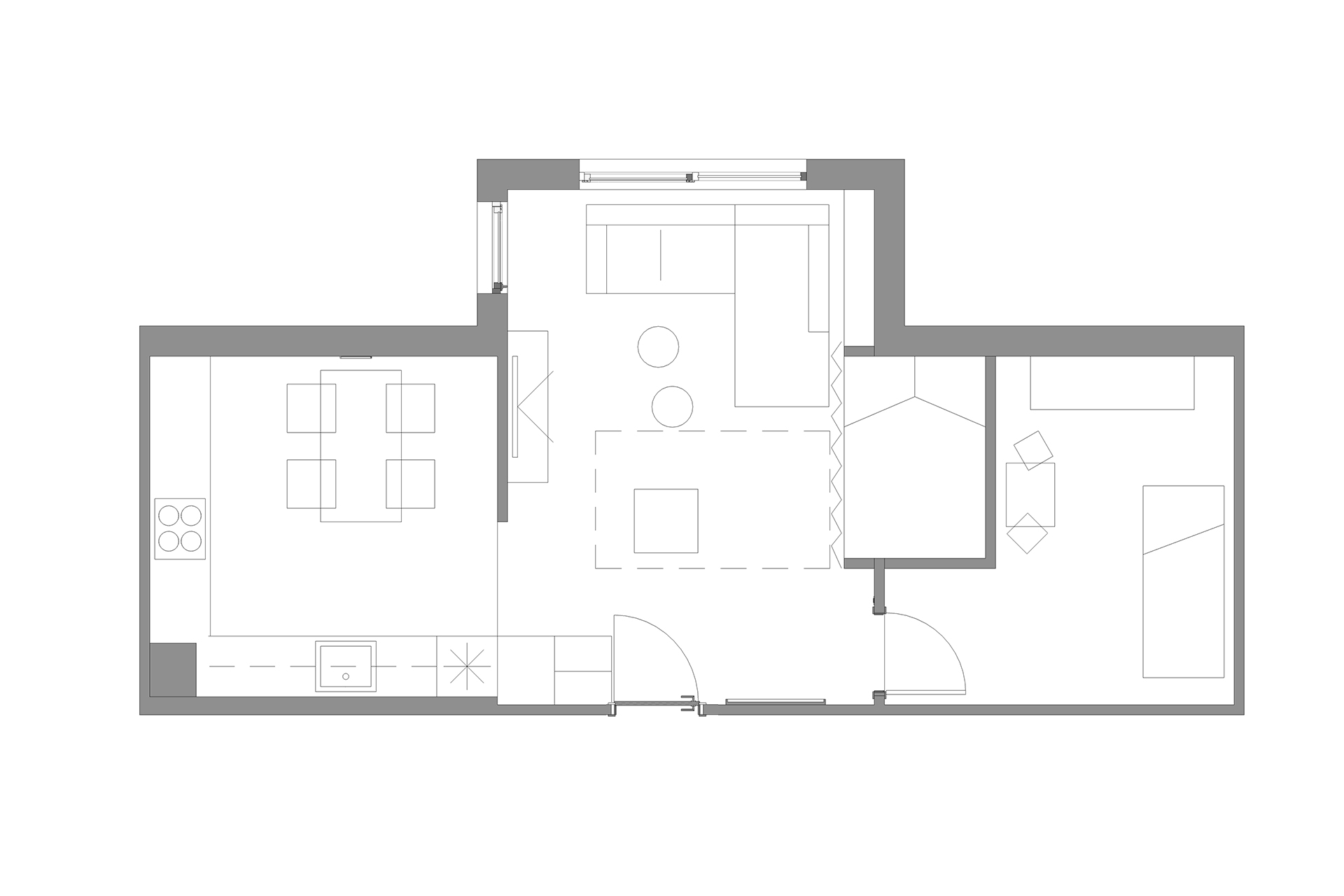
Tloris prej in potem.
“Ko slišiš takšne in drugačne zgodbe o prenovah in mojstrih, je bil v moji glavi en majhen zaskrbljen glasek, da bo šlo kaj narobe (tudi zato, ker sem vam zaupala celoten proces), ampak brez strokovnjaka kot ste vi, sem vedela, da ne bo šlo. Zato sem se morala odločiti za pomoč in vse je temeljilo na zaupanju, ki ste ga ustvarili pri prvih stikih, pa malo sem se zanašala na svoj šesti čut. Najbolj me je skrbelo, da boste preveč”umetniški” in da rešitve ne bodo sledile najinim potrebam in željam.”
“Ko slišiš takšne in drugačne zgodbe o prenovah in mojstrih, je bil v moji glavi en majhen zaskrbljen glasek, da bo šlo kaj narobe (tudi zato, ker sem vam zaupala celoten proces), ampak brez strokovnjaka kot ste vi, sem vedela, da ne bo šlo. Zato sem se morala odločiti za pomoč in vse je temeljilo na zaupanju, ki ste ga ustvarili pri prvih stikih, pa malo sem se zanašala na svoj šesti čut. Najbolj me je skrbelo, da boste preveč”umetniški” in da rešitve ne bodo sledile najinim potrebam in željam.”
Stanovanje, ki je staro 13 let, je bilo kupljeno pred šestimi leti. V njem živita mamica in triletna hčerka. Ob vselitvi je lastnica s seboj pripeljala svoje pohištvo iz najemniškega stanovanja, kuhinjo prejšnjih lastnikov je obdržala, saj je bila ta še skoraj nova. Končni videz stanovanja ob vselitvi je lastnica opisala kot hitro in poceni zloženko različnih slogov, v kateri pa se ni najbolje znašla in počutila.
Sprva se s temi občutki ni preveč obremenjevala, saj vsakodnevno življenje prinaša več kot dovolj resnejših skrbi in opravkov, še posebej, če se človek večino časa ukvarja z novorojenčkom. Zdaj, ko je deklica stara tri leta in prav tako kot mamica potrebuje svoj lastni kotiček, skupna spalnica ni več primerna rešitev.
Odločitev za prenovo je bila dokončna, ko je lastnica ugotovila, da obstoječe stanje več ne ustreza njunim potrebam in življenjskemu slogu. Pred prenovo si namreč s hčerkico nista delile le spalnice, tudi dnevna soba se je čez dan spremenila v igralnico. Želela si je bolj moderen, skladen dom, več zaprtih površin, več prostora za druženje, pa tudi za zasebnost.

Fotografija: Celovito.si, dnevna soba pred prenovo.

Fotografija: Celovito.si, kuhinja pred prenovo
Strah pred prenovo in organizacijo potrebnih del je bil seveda prisoten, zato je želela poiskati nekoga, ki bo za vse to poskrbel namesto nje. Želela je torej prenovo na ključ, to pa je ravno tisto, kar naša ekipa najbolje počne.
Skrbno smo prisluhnili njenim potrebam in željam, se uskladili glede sprememb tlorisa, opreme ter proračuna in dela so se lahko pričela. Lastnica je le predala ključe ekipi celovito in se s hčerko odpravila na tritedenski dopust.
Steno med dnevno sobo in spalnico je bilo potrebno podreti, da smo med prostoroma lahko na novo zgradili spalno nišo za mamico. Nekdanja skupna spalnica je tako postala čisto prava otroška soba z vsem, kar majhna deklica potrebuje. Arhitekt je mislil tudi na to, da bodo novi prostori karseda brezčasni, saj otroci hitro rastejo in tudi prenov se običajno ne lotevamo vsakih pet let.
“Moja hčerkica se rada pohvali, da ima novo lepo in čisto svojo sobico s pisanimi lučkami. Vsak večer izbereva novo najljubšo barvo lučk.”
“Moja hčerkica se rada pohvali, da ima novo lepo in čisto svojo sobico s pisanimi lučkami. Vsak večer izbereva novo najljubšo barvo lučk.”


Nekdanja spalnica je postala otroška soba.
Največjo preobrazbo je doživela kuhinja, ki se je iz kaotične in nefunkcionalne spremenila v umirjeno in elegantno. Nova kuhinja ima več delovnih in shranjevalnih površin, hkrati pa je bolj zračna. Manjšo steno med kuhinjo in dnevno sobo smo podrli in tako dobili bolj povezan prostor. Prej je bila namreč kuhinja povsem ločena od dnevnega prostora. Omare se iz kuhinje nadaljujejo v dnevno sobo. Dnevna soba je po novem precej bolj urejena, saj so se igračke preselile v otroško sobo, barve pa so bolj umirjene.
“Veliko mi je pomenilo to, da ste bili vedno točni in se držali dogovorjenih rokov, sem namreč precej zasedena, hkrati pa po mojem mnenju s tem pokažeš neke vrste spoštovanje do drugega. Poleg tega ste imeli vedno odgovor na moja vprašanja in ste mi znali stvari pokazati tako, da sem si jih lahko dobro predstavljala kljub temu, da imam izredno slabo prostorsko predstavo. Vaše rešitve so bile odgovor na najine potrebe in želje, hkrati pa se mi zdi, da dodate tisto piko na i in ostajate zvesti tudi svoji viziji. Z del sem izvedbo zelo zadovoljna, dejstvo, da mi ni bilo treba poklicati nobenega mojstra in iskati stvari po trgovinah pa je neprecenljivo.”
“Veliko mi je pomenilo to, da ste bili vedno točni in se držali dogovorjenih rokov, sem namreč precej zasedena, hkrati pa po mojem mnenju s tem pokažeš neke vrste spoštovanje do drugega. Poleg tega ste imeli vedno odgovor na moja vprašanja in ste mi znali stvari pokazati tako, da sem si jih lahko dobro predstavljala kljub temu, da imam izredno slabo prostorsko predstavo. Vaše rešitve so bile odgovor na najine potrebe in želje, hkrati pa se mi zdi, da dodate tisto piko na i in ostajate zvesti tudi svoji viziji. Z del sem izvedbo zelo zadovoljna, dejstvo, da mi ni bilo treba poklicati nobenega mojstra in iskati stvari po trgovinah pa je neprecenljivo.”


Dnevna soba pred in po prenovi.
V slabih treh tednih, ko sta “punci” uživali na dopustu, se je naša ekipa kar pošteno potila in tiktakala kot švicarska ura. Ko je bilo vse prenovljeno in novo pohištvo zmontirano, je enako doletelo še čistilko, ki je za piko na i še vse skupaj počistila.
A ves pot je bil kmalu poplačan, ko se je lastnica vrnila v svoj prenovljen dom. Njene prve besede so bile, da je vse skupaj še veliko lepše kot je pričakovala. Zelo velik kompliment za našo ekipo, ki prisega na pravi »ključ«.
“Ne smem pozabiti vseh pozornosti, ki sva jih bili deleženi, kot so recimo okrasne blazine za mojo hčerko, skoraj sem ostala brez besed pa se mi to zelo redko zgodi. Tudi moji prijatelji, ki so že videli prenovljeni dom, so se strinjali, da ste popolni profesionalci. Saj niso mogli verjeti, kaj vse se da narediti znotraj danih okvirjev. Odločena sem, da se čez čas spet vidimo. Če zadanem na lotu, pri opremljanju male sanjske hišice, če ne pa vsaj pri prenovi kopalnice čez nekaj let.”
“Ne smem pozabiti vseh pozornosti, ki sva jih bili deleženi, kot so recimo okrasne blazine za mojo hčerko, skoraj sem ostala brez besed pa se mi to zelo redko zgodi. Tudi moji prijatelji, ki so že videli prenovljeni dom, so se strinjali, da ste popolni profesionalci. Saj niso mogli verjeti, kaj vse se da narediti znotraj danih okvirjev. Odločena sem, da se čez čas spet vidimo. Če zadanem na lotu, pri opremljanju male sanjske hišice, če ne pa vsaj pri prenovi kopalnice čez nekaj let.”















