Stanovanje iz 60-ih let prejšnjega stoletja še nikoli ni bilo prenovljeno. V zadnjih letih je nudilo zavetje le še študentom za minimalno najemnino. Takšna je usoda marsikaterega stanovanja, ki težko čaka na celovito prenovo.
Res je, da prostorska zasnova starih stanovanj večinoma ne ustreza današnjim časom. Majhni in temačni prostori s preveč vrati ter premajhne kopalnice ne nudijo tistega, kar si danes želimo. Tudi gospodična, ki nas je povabila na ogled, na začetku ni bila prepričana, ali je stanovanje sploh primerno zanjo. A že ob prvem obisku se je dvom razblinil. Ugotovili smo, da ima stanovanje velik potencial!
O PROJEKTU
Proračun: 65.000 EUR
Načrtovanje: 6 mesecev
Čas prenove: 3 mesece
Leto: 2017


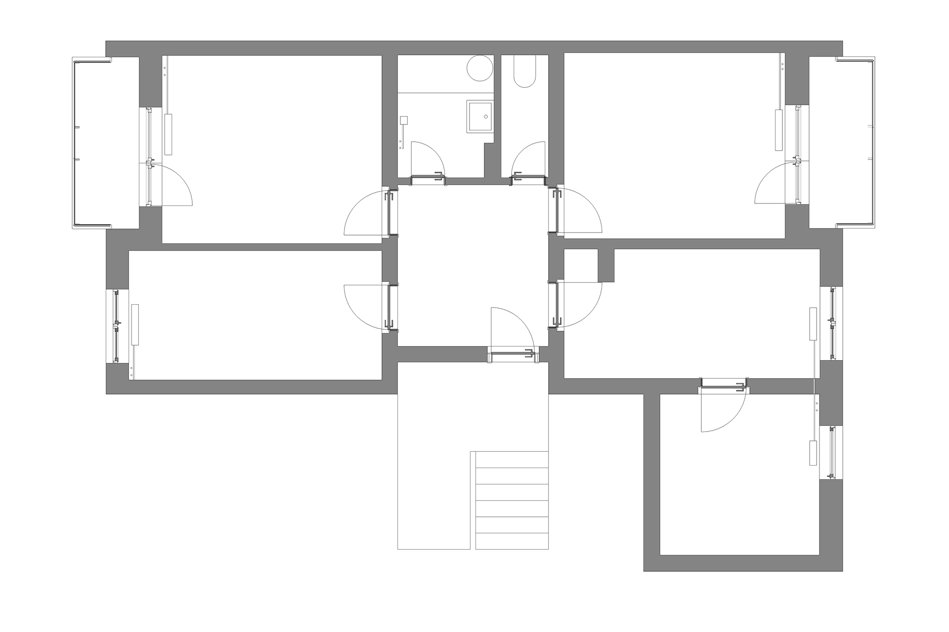
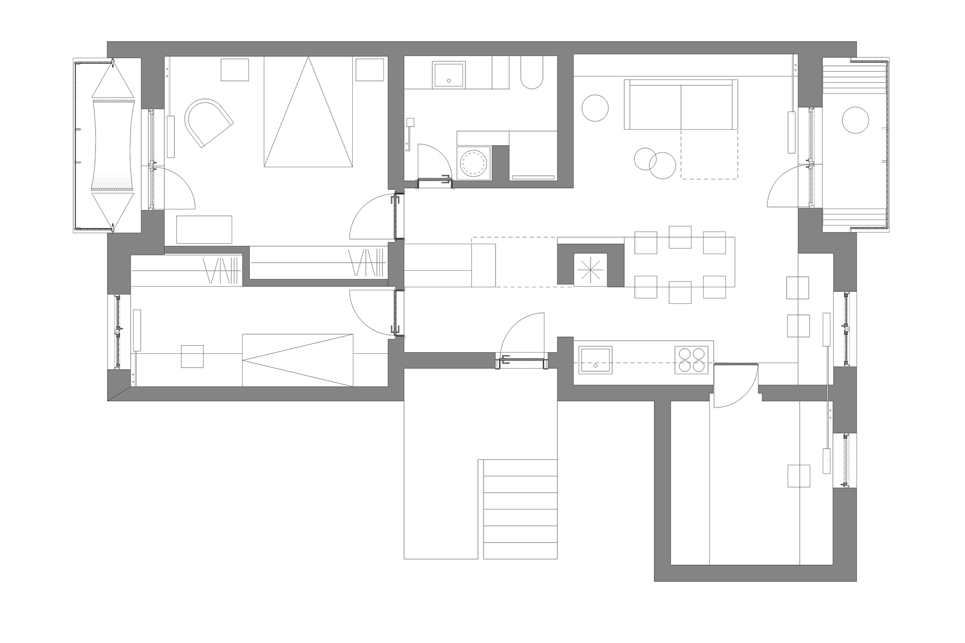
Tloris prej in potem.
Stanovanje na Viški cesti v Ljubljani se namreč razteza čez celotno širino bloka. Osvetljeno je tako iz vzhoda kot iz zahoda, z dovolj velikimi balkoni na obeh straneh. Takšna kvaliteta ni ravno pogosta v slovenski stanovanjski gradnji. Po dobrih 50 letih je bilo stanovanje popolnoma dotrajano. Na novo je bilo potrebno zasnovati prostore in prenoviti popolnoma vse. To pa zahteva skrbno načrtovanje tako samega projekta, kot tudi izvedbe. Ker je naša naročnica pogosto odsotna se sama s tem ni niti želela niti zmogla ukvarjati.
Prenovili smo celotno električno napeljavo, vključno s prestavitvijo števca (pri čemer zna Elektro Ljubljana s svojo birokracijo res neugodno zavleči celoten proces), vodovod, stene, tlake ter seveda pohištvo in opremo. Takšni projekti so nam pravzaprav najljubši. Projekti, kjer lahko stanovanje popolnoma ‘recikliramo’ in mu vdahnemo novo življenje.

Vhodni prostor.
Stara postavitev prostorov je bila, kot je tipično za stanovanja tistega obdobja, neprimerna za današnji čas. V stanovanje se je vstopilo v nenavadno velik vhodni prostor, skoraj kvadratne oblike in z veliko vrati. Vhod so obdajale štiri različno velike sobe, kuhinja z majhno jedilnico ter premajhna kopalnica, poleg katere je bil v majhnem ločenem prostoru še WC.
Glede kopalnice in WC-ja ni bilo dvoma – potrebno ju je bilo združiti v en sam, večji prostor. Tako smo pridobili prostor za večjo utiliti omaro in walk-in tuš. Slednji so zadnje čase zelo popularni, čeprav jih ni enostavno umestiti v stara stanovanja, saj imajo pogosto (pre)majhno razpoložljivo višino v tleh za vgradnjo talne kanalete in izvedbo primernega padca za odtekanje vode. Skoraj pa bi se nam zataknilo pri vgradnji ‘bele tehnike’. V mali kotiček ob vhodu v kopalnico smo morali namreč umestiti pralni stroj, sušilni stroj in za nameček še grelnik vode. Na papirju bi moralo biti ravno dovolj prostora. A ‘hudič’ je kot ponavadi v detajlih. Kljub temu, da smo preverili dimenzije sušilnega stroja v tehničnih specifikacijah, se je izkazalo, da nam je na koncu zmanjkalo le 5 mm prostora. Na srečo smo z malce iznajdljivosti težavo uspeli rešiti. Zelo nerodno bi namreč bilo, da bi morali tik pred primopredajo še enkrat razbijati steno.

Kopalnica prej in potem.
Za ureditev dnevnega prostora prav tako ni bilo dvoma. Potrebno je bilo združiti kuhinjo z jedilnico in sobo, ki je mejila na kuhinjo. Ker ju je ločila le predelna stena, smo prostora lahko povezali v en velik, zračen prostor s kuhinjo na eni strani, dnevno sobo na drugi ter jedilno mizo vmes. Dodatno delovno površino pa smo uredili kar ob oknu, kjer je včasih stal star jedilni kot.
Ob kuhinji z jedilnico je bila še manjša delovna soba, v katero so vodila vrata le iz kuhinje in še to na zelo nerodnem mestu. Zadrega kako urediti dostop v delovno sobo, ne da bi ‘pokvarili’ celoten kuhinjski niz, je botrovala nenavadni rešitvi. Dostop smo namreč ‘skrili’ kar v kuhinjsko omaro. No, ne gre zares za omaro. Le izgleda tako. Kot v holivudskih filmih, kjer se s pritiskom na skrivni gumb omara razmakne in razkrije skrivni prehod v neznani svet. 🙂
Tudi z ureditvijo hodnika oziroma vhoda smo se morali kar malce poigrati. Zaradi kvadratne oblike prostora smo se odločili, da bomo omare postavili kar po sredini prostora in ne na klasično mesto – ob stene. Tako je nastal niz garderobnih omar z ‘mostom’. S tem smo prostor odlično izkoristili, saj so omare dostopne z obeh strani, obenem pa ustvarijo zanimiv vhod v stanovanje, ki preseneti vsakega obiskovalca, hkrati pa se oprema navezuje na sosednji dnevni prostor.


Dnevna soba pred rušenjem predelne stene in po tem.
Nekaj prestavitev sten smo naredili tudi med preostalima dvema sobama. V prvotni ureditvi ti dve sobi nista imeli prostora za omare, zato smo s predelavo predelne stene, ki ju je ločevala, naredili prostor za vgradno omaro v niši v spalnici in sobi.
Celoviti prenovi tako ni ušel prav noben prostor v stanovanju, ki ima sedaj povsem drugačno podobo. Postal je dom z mladostno energijo, v katerem se že pišejo nove zgodbe in verjamemo, da bodo srečne in uspešne. Pri vsem skupaj pa je bilo najlepše to, da se naši naročnici ni bilo potrebno prav nič ukvarjati s celotno prenovo. Z našimi podizvajalci smo poskrbeli za prav vsa dela, opremo in dodatke. Tako, kot to najraje počnemo – s piko na i.
Galerija fotografij
Video











