Piran, obmorsko mesto s svojim čarom in bogato zgodovino, je postal prizorišče celovite prenove stanovanja, ki ga nameravajo lastniki večino časa uporabljati sami, del leta pa ga bodo oddajali. Cilj prenove je bil posodobiti prostore in jim vdahniti svežino v mediteransko-tostanskem stilu, hkrati pa maksimalno izkoristiti vsak kvadratni meter.
Stanovanje, ki se nahaja v zgodovinskem središču Pirana, je že imelo nekaj čudovitih značilnosti, vendar so se lastniki odločili, da ga dvignejo na še višjo raven. Zasnovali smo projekt, ki združuje eleganco mediteranskega stila s funkcionalnostjo prostorov.
Eden od ključnih elementov prenove je bila uporaba naravnih materialov, ki so značilni za mediteranski prostor. V stanovanju prevladujejo topli odtenki lesa in keramike v svetlih odtenkih. S temi materiali smo dosegli prijeten in funkcionalen ambient, ki se odlično ujema s sredozemskim okoljem.
O PROJEKTU
Leto: 2023
Načrtovanje: 3 meseci




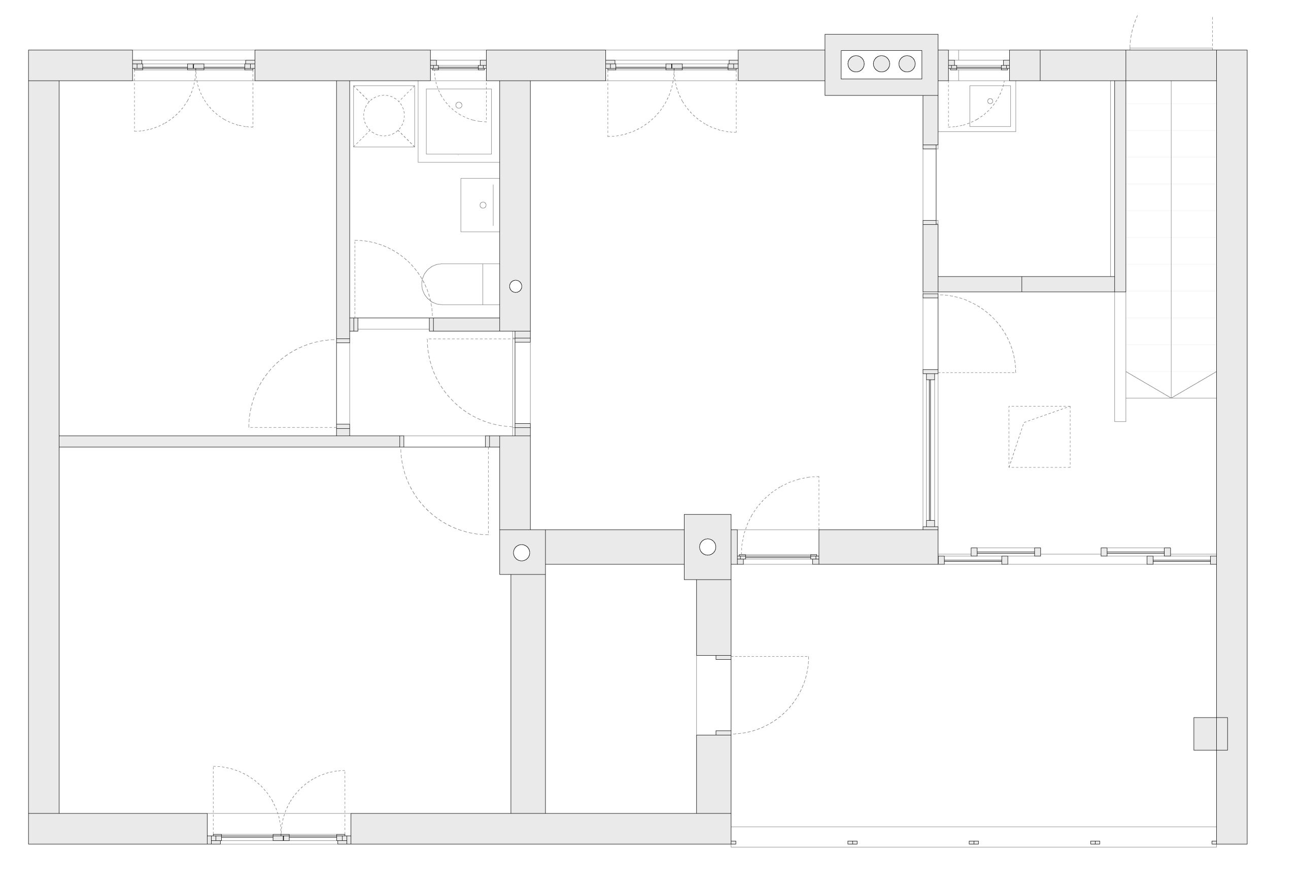
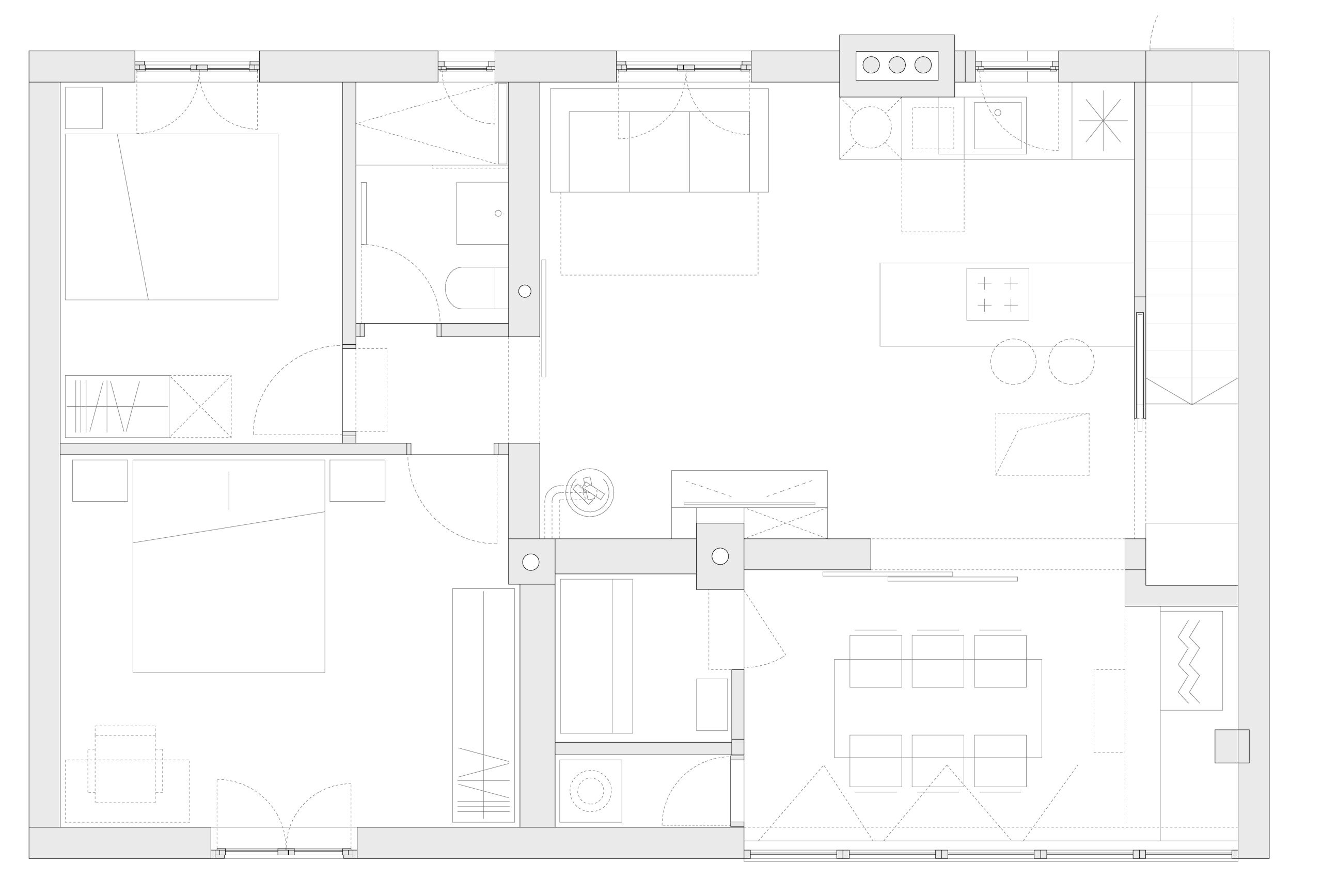
Do največje spremembe je prišlo pri vhodu v stanovanje. Iz predprostora, manjše kamrice in dnevne sobe smo naredili en večji odprt dnevni prostor. To smo dosegli z rušitvijo predelnih sten.
Predprostor smo sicer obdržali, vendar na minimalni površini, prostora je ravno dovolj za sezuti čevlje in odložiti garderobo.
Iz zmanjšanega predprostora vstopimo direktno v lepo osvetljeno kuhinjo z dvema nizoma, na drugo stran prostora pa smo umestili dnevno sobo s kavčem in TV regalom. Piko na i doda še malo posebno ogledalo, ki prostor optično poveča.
Pri prenovi smo se osredotočili na osrednji prostor in na zadostno količino kuhinjskih elementov, ki se poslednično pojavijo tako v dnevnem prostoru kot na zaprtem balkonu.
Jedilnica je seveda tam, kjer je najlepši razgled – na zaprtem balkonu, ki se zaradi oken čez celo steno kopa v svetlobi. Prostor zaseda miza s sedišči za 6 ljudi in manjši kuhinjski niz z žarom in pečico. Od tam lahko dostopamo še do shrambe.

Z rušitvijo stene smo iz utesnjenega prostora dobili lepo osvetljeno kuhinjo.
Stanovanje dopolnjujeta še 2 spalnici, obe minimalistično opremljeni v umirjenih tonih, kot se za spalni prostor tudi spodobi. V večjo spalnico smo umestili še manjšo mizico za branje ali delo od doma.
Poleg obeh spalnic se iz manjšega hodnika dostopa še v kopalnico z wcjem, katere kvadraturo smo izkoristili do zadnjega centimetra. Ploščice na stenah so v istem stilu in barvi kot v kuhinji, to so t.i. metro ploščice.
Poudarek pri celoviti prenovi je bil na funkcionalnosti pohištva, ki je bilo izbrano z mislijo na udobje in uporabnost. Pohištvo je bilo skrbno izbrano, da se sklada z mediteranskim okoljem, hkrati pa zagotavlja udobno bivanje.

V spalnici prevladujejo umirjeni toni.
Z ekipo Celovito je bila prenova zagotovo veliko lažja. Ne predstavljava si, da bi se takega projekta lotila brez izkušene ekipe, ki je znala prisluhniti najinim željam. Rezultat je stanovanje, ki nam je pisano na kožo.
Več o projektu si lahko ogledate v galeriji. Fotografije je posnela Katja Jemec.














