Redka so stanovanja, namenjena oddajanju, kjer bi se lastniki odločili za celovito prenovo, s pohištvom po meri. Zdi se jim, da bodo najemniki lahko naredili veliko škode, sploh če so najemojemalci družine z otroci. Zaradi tega v stanovanja minimalno ali pa skoraj nič ne investirajo. Pa vendar temu vedno ni tako. Tudi najemniki si želijo lepih stanovanj, za katere so pripravljeni nekoliko več odšteti in za njih skrbeti, kot bi skrbeli za svoj dom.
O PROJEKTU
Proračun: 61.000 EUR
Načrtovanje: 8 mesecev
Čas prenove: 5 mesecev
Leto: 2018
Dinamičen in aktiven par, ki je pred nekaj leti kupil opremljeno stanovanje, je želel stanovanje prenoviti tako, da bi ustrezalo njima in njunemu življenjskemu stilu. Oba sta športno aktivna, potrebujeta prostor za kolesa, jamarsko opremo in veliko potujeta.
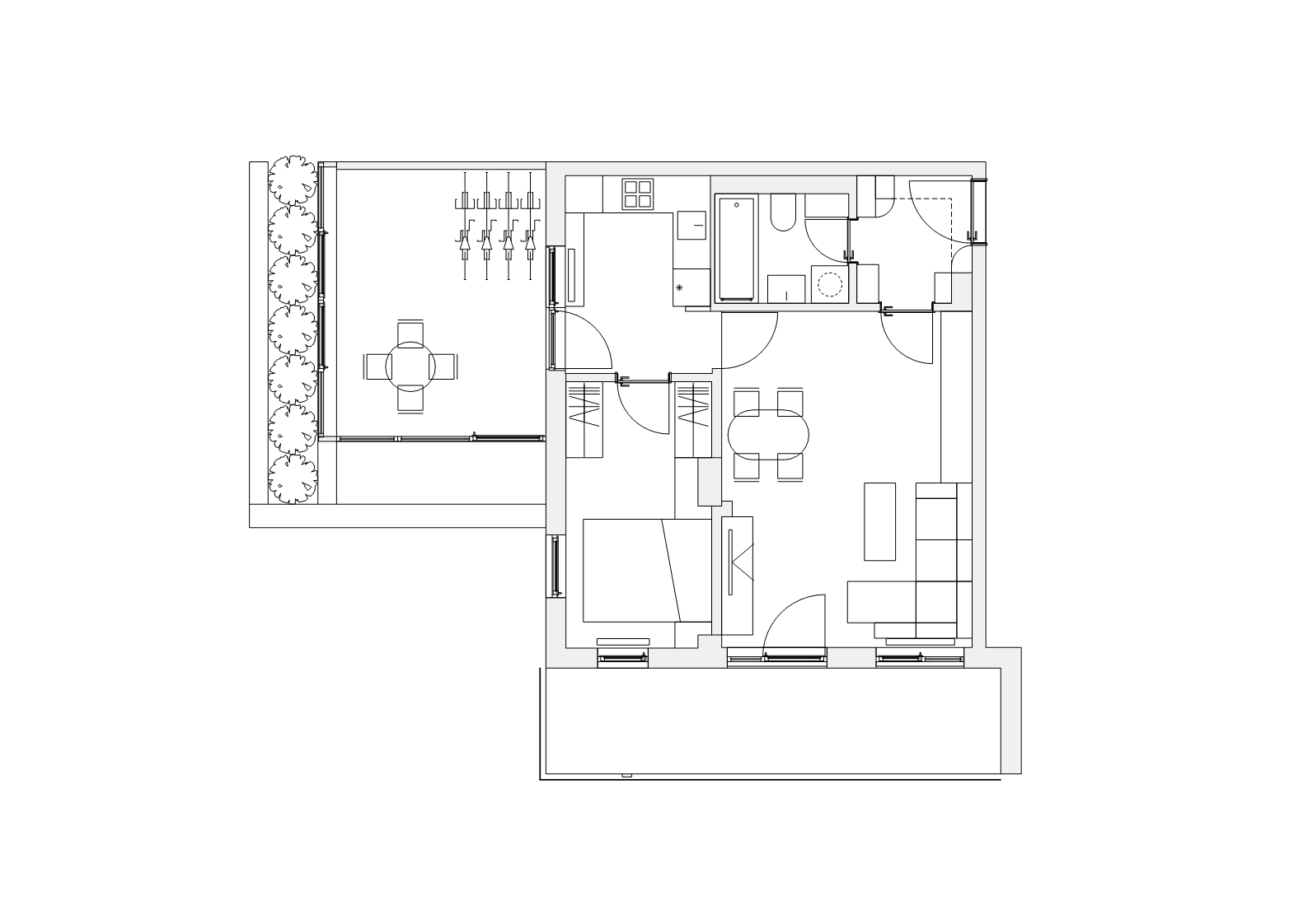
Stanovanje je bilo sestavljeno iz majhnih ločenih prostorov, ki so bili skrajno utesnjeni. Kuhinja je bila minimalna, v spalnici pa je bil prehod ob postelji komajda uporaben. Poleg balkona pa je imelo stanovanje tudi prostorno teraso. Večji del terase je bil zastekljen, tako da je bila tu zasilna jedilnica in shramba obenem. Prostori so bili natrpani z raznoliko opremo intenzivnih barv, kar je še dodalo k utesnjenosti.


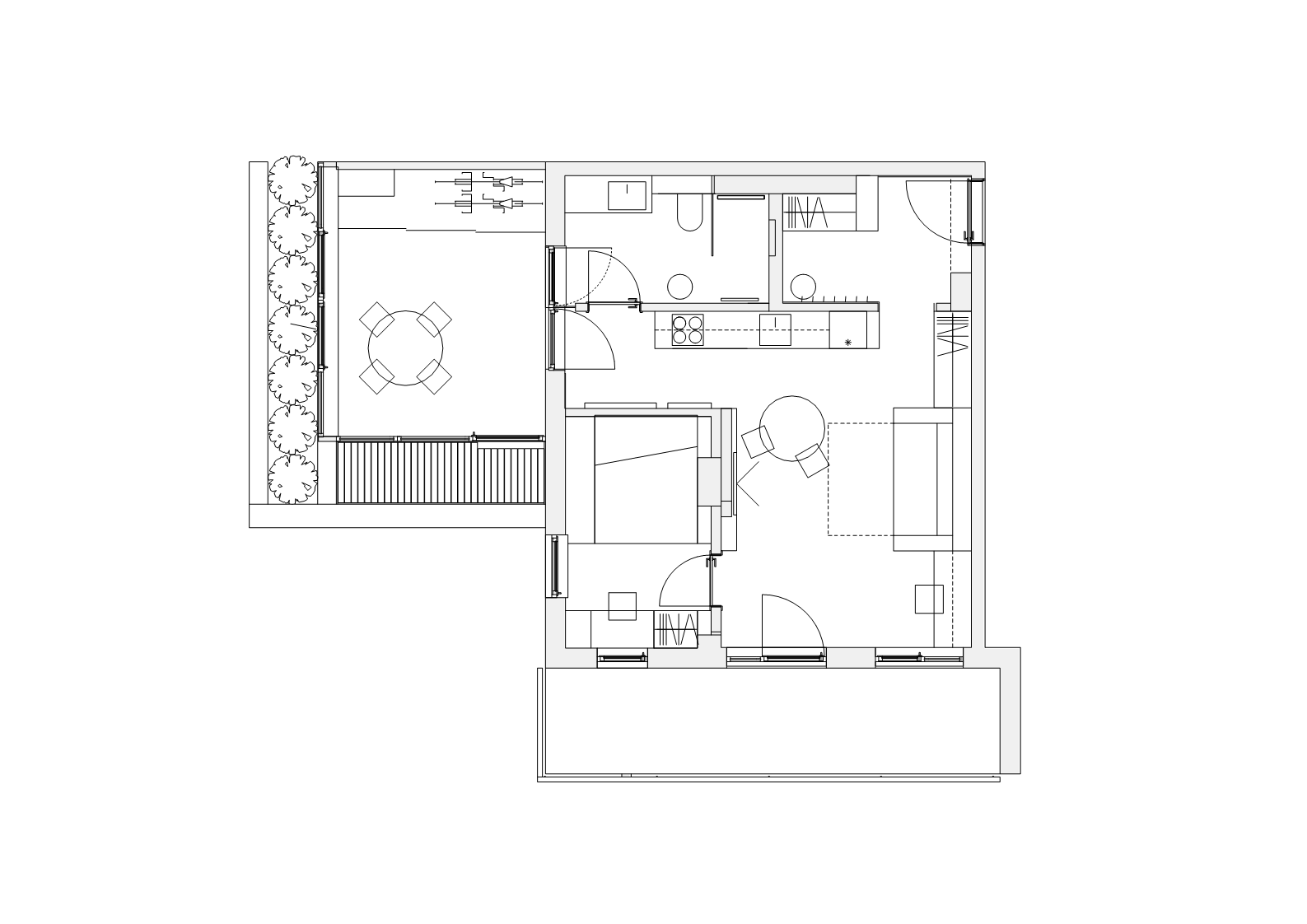
Tloris stanovanja pred in po prenovi.
Tlorisno smo stanovanje preuredili tako, da je bolj funkcionalno. Ob manjšem številu prostorov smo zmanjšali tudi količino barv v prostorih in s tem dobili prijetno stanovanje.
Kopalnico smo prestavili ob okno. S tem je pridobila dnevno svetlobo. Namesto kopalne kadi smo vgradili tuš, pralni stroj pa smo pospravili v omarico. S prestavitvijo kopalnice smo povečali tudi predsobo, ki zdaj omogoča tudi sprejemanje gostov.


Kopalnica pred in po prenovi.
Kuhinjo smo vključili v dnevni prostor. Ta je postal osrednji del iz stanovanja iz katerega je dostop v vse ostale prostore. Spalnico smo celo zmanjšali, saj smo posteljo namestili v nišo. Višina postelje omogoča neposreden pogled skozi okno. S prestavitvijo vrat pa smo minimalizirali pohodno površino spalnice.


Dnevna soba pred in po prenovi.
Zimski vrt smo preuredili tako, da je postal prostor za druženje, ob tem pa smo shrambo za športno opremo ločili z zaveso.
Stanovanj, ki imajo slabo tlorisno zasnovo in so zaradi tega nefunkcionalna, ni mogoče reševati zgolj z opremo. Taka stanja običajno pripeljejo do dodajanja intenzivnih poudarkov v prostoru, ki preusmerjajo pozornost od globljih težav. To se seveda dogaja na nezavedni ravni, ki je posledica občutka nemoči. Želiš si opremiti stanovanje, pa ne najdeš pravega načina. S slabimi nakupi pa ljudje nemalokrat zapravijo tudi veliko denarja. Zato je dobro opraviti svetovanje pri prenovi stanovanja.
V takih primerih je le arhitekt tisti, ki bo videl jedro težave. To pa je začetna točka iskanja rešitve!
Več slik si lahko ogledate v spodnji galeriji.











