Mlada družina se je obrnila na nas z željo po prenovi enodružinske hiše. Prenove hiš vključujejo mnogo dodatnih del, procesov in projektiranja kot stanovanja. Zaupanje smo poplačali z dobro izvedenim projektom, ki se je izkazal za kvaliteten dom, v katerem z veseljem bivajo.
O PROJEKTU
Investicija: 155.000 EUR
Načrtovanje: 7 mesecev
Čas prenove: 7 mesecev
Leto: 2019

Predstavili smo že veliko prenovljenih stanovanj, vedno pogosteje pa prenavljamo tudi hiše. Poglavitna razlika med njimi je, da so hiše celovite enote, ki praviloma zahtevajo tudi takšno obravnavo, medtem ko so stanovanja del večje celote in njihova prenova zajema samo aspekte, ki so specifični za dotično stanovanje. Pri hiši se tako pogosto zgodi, da lahko posegamo v konstrukcijo objekta na kreativne načine, kar omogoča večjo fleksibilnost pri oblikovanju tlorisnih zasnov. Ne glede na tloris ali oblikovni stil, pa je na prvem mestu pri hišah potrebno poskrbeti za primerno toplotno izolativnost objekta, zagotoviti streho, ki ne pušča, dotrajane inštalacije zamenjati, spremeniti vir ogrevanja in še bi lahko naštevali. Cilj je zagotoviti zdrav objekt, ki bo lahko dolgo časa kljuboval silam narave in pri tem domačim nudil toplo ter varno zavetje.


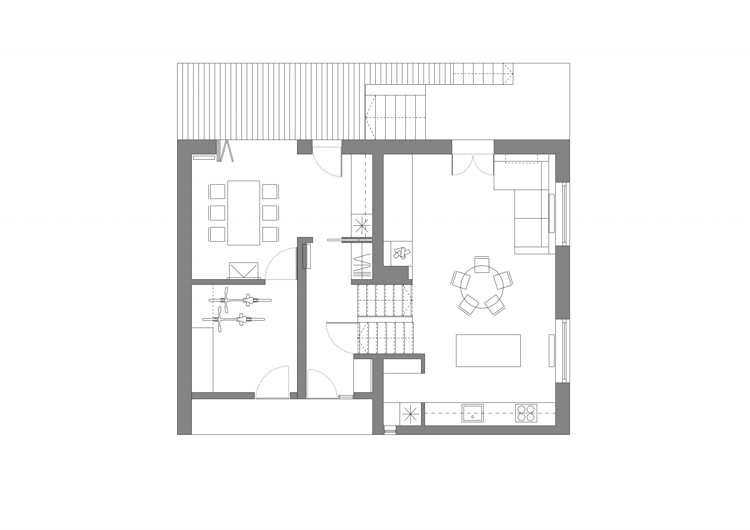
Tloris 1. etaže


Tloris 2. etaže
Kot si verjetno predstavljate, je vodenje takšne prenove zapleten proces, ki zahteva veliko znanja in izkušenj – tu vskočimo mi. Popeljemo vas skozi proces zasnove novega doma, preko dejavnikov, kot so statične omejitve objekta, urbanistične omejitve, pridobivanje dokumentacije, upoštevamo zahteve za pridobitev subvencij … skratka vse, kar je potrebno, da pridemo udobno in brez stresa do želenega rezultata.
Stanje danega objekta je primerno času, v katerem je bil zgrajen. Do danes so se tehnologije in standardi že toliko spremenili, da je bila celovita prenova nujna. Proces pa se je začel nekoliko bolj idilično – najprej s snovanjem tlorisne rešitve in kasneje z oblikovanjem celostne podobe. To je faza, ki tako nas kot naročnike navda z navdušenjem, s pogledom v prihodnost, prevzamejo nas neskončne možnosti. S komunikacijo in odstiranjem plasti za plastjo se počasi kristalizira končna rešitev, s katero smo vsi zadovoljni. Po preveritvi investicije se lotimo izdelave načrtov za izvedbo ter projektne dokumentacije, čemur sledi izvedba. Velja rek, da je dobra priprava že polovica zmage. Koordiniranje elektro projektantov, strojnikov, statikov in drugih strokovnjakov je tako ključno, da se doseže kvaliteten projekt, ki vodi do dobre izvedbe.
Obstoječi objekt je umaknjen od ceste in se deloma skriva za sosednjim objektom. S cestiščem je povezan z ozelenjeno dovozno potjo. Stoji v lepem vrtu z visokim drevjem, zagrajen od ostalih sosedov. Notranjost objekta je zanimiva, saj se nadstropja menjajo polovično, torej z medetažami. To pomeni krajše razdalje med nadstropji, kar vzpodbuja komunikacijo znotraj objekta. Vsaka etaža je bila predeljena v več manjših prostorov – od tu tudi poglavitna ideja, ki so jo naročniki želeli doseči, da se prostore poveže med seboj – mi smo se seveda z veseljem strinjali.
Pritličje sta v osnovi predstavljala vhodni prostor in garaža, ki ni več služila svojemu namenu. Garažo smo predelili in jo na eni strani ohranili kot servisni oz. shrambni prostor, na drugi pa smo jo povezali in ustvarili večji prostor za druženje z neposrednim izhodom na vrt.
Vse predelne stene prve medetaže smo porušili in ustvarili en velik prostor, kjer se med seboj prepletajo kuhinja, jedilnica in dnevni prostor. Slednji ima tudi izhod na dvignjeno teraso z lastnim zunanjim stopniščem do vrta.
V nadstropju smo šivalnico, ki je bila večji prostor, preuredili v kopalnico, manjšo sobo pa smo delno povezali s hodnikom in tako ustvarili prostor primeren za spalnico z lastnim balkonom in pogledom na vrt.
Na najvišjem nivoju je ostal prostor za dve otroški sobi ter šivalnim kotičkom na vrhu stopnišča.
Zunaj smo objekt oblekli v belo fasadno opno, kar mu da sodoben izgled. Primerna izolacija in menjava oken je omogočila tudi subvencioniranje prenove. Vhodna niša je obarvana črno, kar jasno signalizira prostor zavetja ter vhoda v dom.
Naročniki se v prenovljenem domu počutijo odlično. Naša naloga, jih voditi skozi proces prenove hiše s čim manj stresa, je bila izpolnjena. Bogate izkušnje s prenovami stanovanjskih hiš nam omogočajo kvalitetno delo, s katerim lahko pomagamo tudi vam.

























