Tako kot v glasbi, kjer osnovni toni rišejo osnovno melodijo, posamezni poudarki pa govorijo zgodbo, je tako tudi v zasnovi in oblikovanju stanovanja. Slaba osnovna melodija poslušalcu ni nič kaj prijetna na uho, enako je z zasnovo stanovanja. Slaba zasnova uporabniku ne nudi udobja pri bivanju, če je dobra, pa s posameznimi smiselnimi poudarki riše način življenja.
Tokrat smo prenovili dvosobno stanovanje, ki s svojo zasnovo in barvno shemo pripoveduje zgodbo načina življenja v novo urejenih prostorih. Barve izkazujejo značaj osebe, ki v takšnem stanovanju živi. Obiskovalcu pa pripovedujejo zgodbo življenja, ki se v njem odvija.
O PROJEKTU
Proračun: 70.000 EUR
Načrtovanje: 3 mesece
Čas prenove: 3 mesece
Leto: 2021

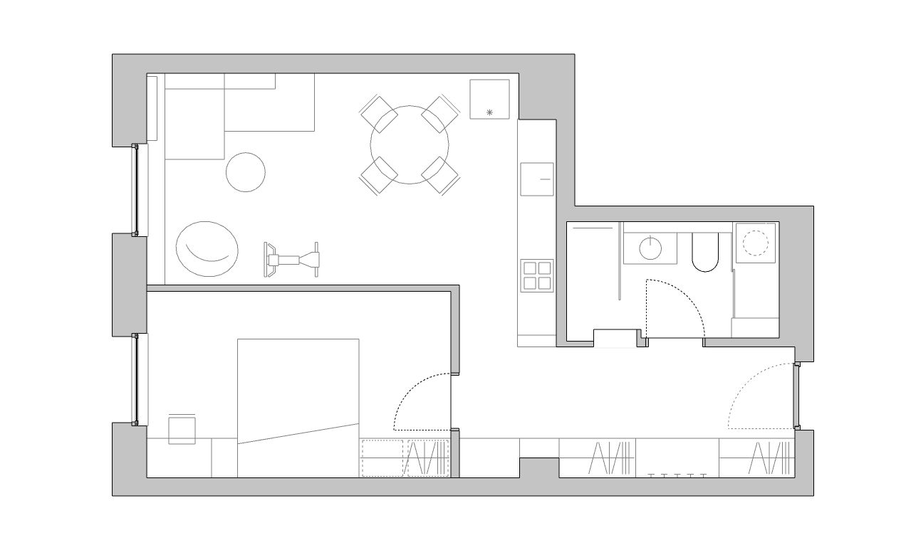
Tloris stanovanja
Dvosobno stanovanje je v primarni zasnovi obsegalo večji hodnik, kopalnico ter spalni in dnevni prostor s kuhinjo, ki je bil v primerjavi s površino hodnika sorazmerno majhen. Sama zasnova stanovanja je bila nefunkcionalna, materiali pa ceneni. Dobra lastnost stanovanja pa je vsekakor njegova orientacija, le-ta uporabniku ponuja izjemno lep poglede na Julijce.
Nova zasnova poenoti dnevni prostor s kuhinjo, veliko okno pa prostor osvetli in ga odpre, poveča. Kuhinja je linija, ki teče ob steni in se konča ob hodniku, ki ga zaključujejo odprte police, ki obenem obiskovalca povabijo v dnevni prostor.
Želja uporabnice je bila, da je stanovanje bolj praktično in barvito s poudarki zelene in vijolične barve.


Dnevni prostor pred in po obnovi.
Zaradi majhne površine stanovanja smo zagotovili veliko prostora za odlaganje in shranjevanje. Omare predstavljajo linijo, ki se prične v hodniku in se nadaljuje v spalnico. Tam nudi dodaten prostor za odlaganje in shranjevanje. Element je viden že ob vstopu v stanovanje, kjer se nahaja odlagalna niša. Spalnica je ostala na prvotnem mestu, preko zasnove omar se povezuje s hodnikom, ki tvori predprostor in izhod v ostale prostore stanovanja.
Največjo spremembo je doživela kopalnica, ki smo jo popolnoma prenovili. Skrita težava kopalnice, poleg nefunkcionalne zasnove, je bila tudi vlaga ujeta v konstrukcijo, kot posledica prehitrega zaključevanja del. Le-to smo sanirali, s prestavitvijo elementov pa pridobili pomožni prostor, ki lahko služi za utiliti.


Osnovna barvna shema zajema naravne tone z želenimi barvami, ki prostor poživijo. Posamezni kosi opreme so prav tako prostorski poudarki, smiselno umeščeni v prostore.
Materiali kot so opeka in les prostoru dodajo toplino, pojavljajo se kot stenske in talne obloge ter pohištvo.

Nefunkcionalne zasnove stanovanja, ki slabo izkorišča lastno površino, ni mogoče reševati zgolj z novo postavitvijo pohištva, temveč jo je potrebno na novo zasnovati, da v polnosti ustreza uporabniku. Takrat je stanovanjska površina najbolje izkoriščena, stanovanje pa po prenovi služi svojemu namenu.
V spodnji galeriji lahko pogledate, kako smo poleg celostne zasnove prilagodili tudi pohištvo in posamezne elemente.




















