V starejši hiši v strogem centru Novega mesta so že nekaj časa samevale opuščene pisarne, ki so kar klicale po prenovi in ponovni uporabi. Nova lastnika sta prostore kupila z namenom, da jih preuredita v v zobozdravstveno ambulanto. Njuna največja želja je bila, da novi prostori ne izgubijo karakterja, s katerim so se ponašali do prenove – visoki stropi, velika umetelno izrezljana dvokrilna vrata in parket položen v vzorcu ribje kosti. Največji cilj pa je seveda bil, da se stranke ob obisku počutijo kar se le da prijetno in domače.
O PROJEKTU
Proračun: 100.000 EUR
Leto: 2020
V starejši hiši v strogem centru Novega mesta so že nekaj časa samevale opuščene pisarne, ki so kar klicale po prenovi in ponovni uporabi. Nova lastnika sta prostore kupila z namenom, da jih preuredita v v zobozdravstveno ambulanto. Njuna največja želja je bila, da novi prostori ne izgubijo karakterja, s katerim so se ponašali do prenove – visoki stropi, velika umetelno izrezljana dvokrilna vrata in parket položen v vzorcu ribje kosti. Največji cilj pa je seveda bil, da se stranke ob obisku počutijo kar se le da prijetno in domače.
O PROJEKTU
Proračun: 100.000 EUR
Leto: 2020
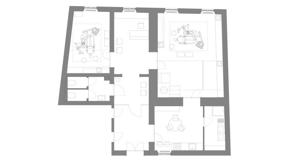
Prostori se nahajajo v 1. nadstropju in imajo razgled na glavni trg. Iz vhodnega hodnika nas predprostor popelje mimo sanitarij neposredno v sprejemni prostor s sodobno oblikovanim lesenim pultom.


Tloris prej in potem.
Iz recepcije nas masivna vrata vodijo v obe ambulanti: na levi je manjša, na desni prostornejša. Zraven je še skupni prostor, ki obsega čajno kuhinjo z jedilnico in utiliti. V ta prostor lahko zaposleni dostopajo iz vhodnega hodnika ali pa iz večje ambulante.
Do večjih sprememb v samem tlorisu ni prišlo. V hodniku smo prestavili obstoječa vhodna vrata bližje ordinaciji. WC-je smo pregradili tako, da smo dobili dva- enega za stranke in enega za zaposlene ter med seboj združili notranji hodnik in recepcijo.
Prostori se nahajajo v 1. nadstropju in imajo razgled na glavni trg. Iz vhodnega hodnika nas predprostor popelje mimo sanitarij neposredno v sprejemni prostor s sodobno oblikovanim lesenim pultom.
Iz recepcije nas masivna vrata vodijo v obe ambulanti: na levi je manjša, na desni prostornejša. Zraven je še skupni prostor, ki obsega čajno kuhinjo z jedilnico in utiliti. V ta prostor lahko zaposleni dostopajo iz vhodnega hodnika ali pa iz večje ambulante.
Do večjih sprememb v samem tlorisu ni prišlo. V hodniku smo prestavili obstoječa vhodna vrata bližje ordinaciji. WC-je smo pregradili tako, da smo dobili dva- enega za stranke in enega za zaposlene ter med seboj združili notranji hodnik in recepcijo.
”Uuuuauu efekt je topla sprejemnica, temna stara obnovljena vrata in decentno elegantno pohištvo – vsakič znova! In seveda takoj za tem ordinacija. Prednost prostornosti ordinacije je med drugim tudi, da so vsi inštumenti in pripomočki shranjeni v številnih predalnikih, ki omogočajo urejenost in preprečujejo že velikokrat videno kaotičnost in nametanost v zdravstvenih prostorih. Prostor navdaja z mirnostjo.”


Ordinacija prej in potem.
Ker so bila obstoječa vrata rokodelsko umetelno izdelana, smo jih ohranili in obnovili. Z barvanjem v temno barvo ter menjavo kljuk v zlate smo njihov izgled nadgradili v modernejšega. Zaradi visokih stropov in povsem belih sten že tako veliki prostori delujejo še večji, zato smo si lahko privoščili opremo v temnejših tonih.
V delu ambulant in recepcije smo velik volumen prostorov z visokimi stropi nekoliko zmanjšali. To smo dosegli z lesenimi letvami, ki ustvarjajo lahkoten spuščeni leseni strop. Podoben oblikovni element se ponovi tudi s pregradno steno v večji ambulanti.


Levo: manjša ordinacija, desno: večja ordinacija.
Zgoraj: manjša ordinacija, spodaj: večja ordinacija.
Preden smo se lotili prenove, je lastnika čakala še ureditev dokumentacije. Potrebno je bilo pridobiti uporabno dovoljenje in urediti spremembo namembnosti. Ker je stavba v starem mestnem jedru in je pročelje spomeniško zaščiteno, je bilo potrebno za določene posege (npr. menjavo oken) pridobiti tudi soglasje Zavoda za varstvo kulturne dediščine. Ker uradni postopki trajajo kar nekaj časa in pogosto opažamo, da pri starejših objektih dokumentacija ni v celoti urejena, je potrebno že pred začetkom projekta računati na dodatno potreben čas in nenazadnje tudi strošek za ureditev vseh papirjev.

Večja ordinacija
Z izvedeno prenovo, ki je sledila zastavljenim načrtom, sta lastnika dobila prostore, kjer lahko opravljata svoje delo nadvse kvalitetno in s srcem, stranke pa se v njih počutijo sproščeno in prijetno, čeprav sedijo na zobozdravniškem stolu. Strah pred zobozdravnikom je v takšnih prostorih vsaj malo manjši. Brez dvoma pa k temu še največ pripomore skrbna in izvrstna oskrba, ki je boste deležni v Zobozdravstvu Glavni trg 14.
Fotografije: Jaka Šuln
Za konec pa še nekaj besed naročnikov, katerim se najlepše zahvaljujemo za zaupanje!
”V užitek nama je vsak dan prihajati v to prostorno in skrbno oblikovano ordinacijo, ki je funkcionalna, oblikovana z občutkom in mislijo na zaposlene in tiste, ki prihajajo do nas ter milina za oči vsakemu obiskovalcu posebej.
Arhitekti so bili enkratni! S posluhom do naročnika in z mislijo, da oblikujejo v stari lupini. Novo, a hkrati kot da že leta stoji tako in služi svojemu namenu.”
”V užitek nama je vsak dan prihajati v to prostorno in skrbno oblikovano ordinacijo, ki je funkcionalna, oblikovana z občutkom in mislijo na zaposlene in tiste, ki prihajajo do nas ter milina za oči vsakemu obiskovalcu posebej.
Arhitekti so bili enkratni! S posluhom do naročnika in z mislijo, da oblikujejo v stari lupini. Novo, a hkrati kot da že leta stoji tako in služi svojemu namenu.”
