Ne rešujemo le prostorskih zagat starih objektov, pogosto se nam namreč zgodi, da v roke dobimo tudi (pre)slabo zasnovane novogradnje. Podobno se je zgodilo koje do nas pristopila družina, ki je želela, da jim pomagamo po meri opremiti hišo, ki so jo kupili na ključ. O čem govorimo, boste izvedeli v naslednji predstavitvi projekta opreme nove hiše blizu Ljubljane.
O PROJEKTU
Proračun: 30.000 EUR
Načrtovanje: 5 mesecev
Čas prenove: 3 mesece
Leto: 2015

Fotografija, Celovito, pogled v kuhinjo
Pred časom nas je poiskala štiri članska družina, ki je v kratkem pričakovala še peto članico. Odločili so se za nakup montažne hiše na delni ključ, od nas pa želeli pomoč pri opremi hiše. Želeli so si sodobno opremljen dom, ki bo obenem primeren za mlado družino. Ko smo zbrali vse njihove želje in začeli z načrtovanjem se je pokazalo, da hiša ni najbolje zasnovana.
Zato smo najprej predlagali nekaj prilagoditev obstoječih prostorov. Kako in kaj točno smo izboljšali si preberite v nadaljevanju.

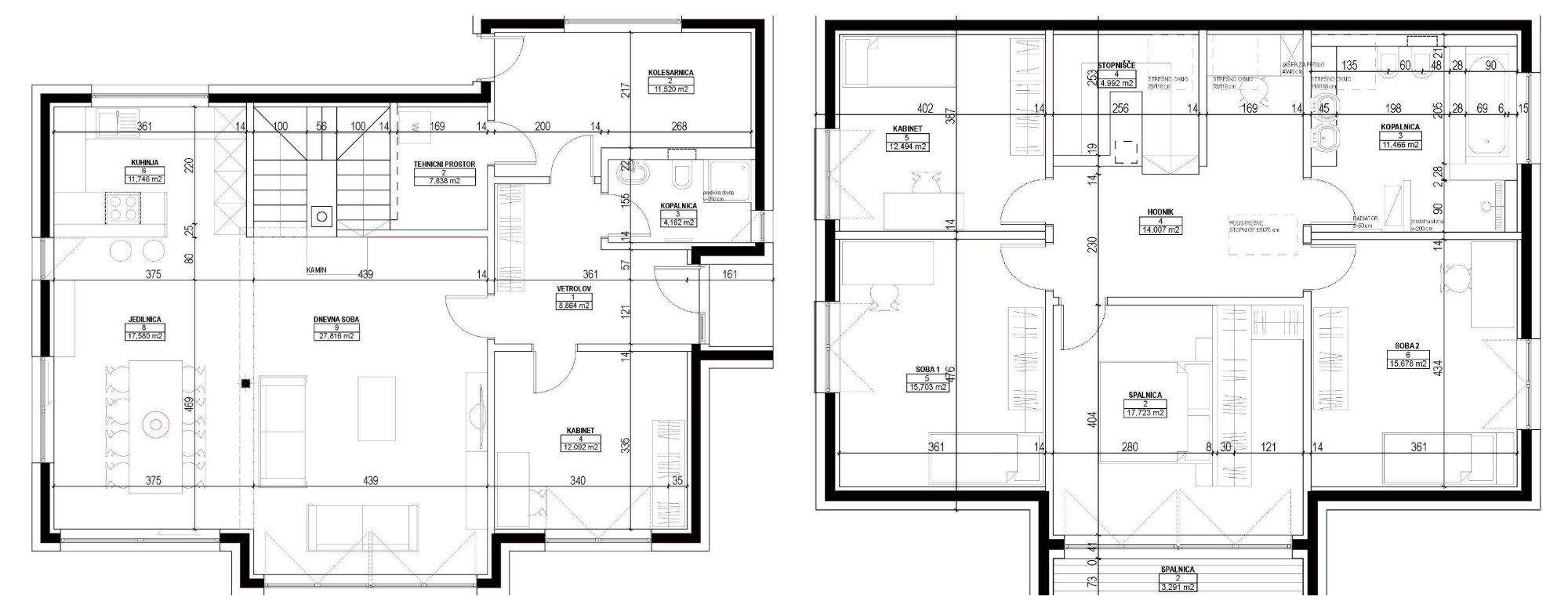
TLORIS PREJ, pritličje in mansarda

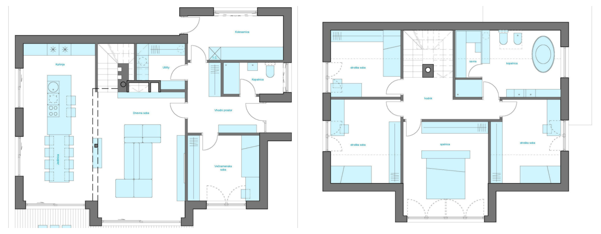
TLORIS POTEM, pritličje in mansarda
Po prvotni zasnovi je bil v spalnici predviden balkon. Dolg vendar ozek, torej dokaj neuporaben. Zato smo ga raje ukinili in namesto njega imata sedaj zakonca veliko zračno spalnico s prehodno garderobno sobo.

Fotografija, Celovito, pogled v spalnico
V družinski kopalnici si je družina želela urediti malo wellness oazo s finsko savno. Vendar je bil prostor, ki je bil predviden za kopalnico premajhen za takšno razkošje. Potreben prostor smo pridobili tako, da smo izkoristili ostanek prostora na hodniku – stopnišču, ki smo ga priključili kopalnici.

Fotografija, Celovito, družinska kopalnica s finsko savno

Fotografija, Celovito, pogled v družinsko kopalnico
Kuhinja je bila po prvotnih načrtih preveč klasično zasnovana, zato smo jo preoblikovali tako, da je bolj ustrezala sodobnemu življenju. Želeli smo bolj zračno in prehodno kuhinjo, ki bo obenem tako zasnovana, da bo povezana z dnevnim prostorom. Pri tako veliki družini se gospodinja kar precej zadržuje v kuhinji, zato je pomembno, da ni odrezana od dogajanja v dnevnem prostoru.

Fotografija, Celovito, pogled v kuhinjo
Zaradi spremembe kuhinje smo malenkost spremenili tudi okna. Tako je prostor sedaj bolje osvetljen. Spremenili smo tudi pozicijo kamina. Prej je posegal v prostor in tako bi motil prehod v dnevnem prostoru, mi pa smo ga potisnili pod stopnice in poravnali s steno v dnevni sobi.

Fotografija, Celovito, pogled v dnevni prostor s kaminom

Fotografija, Celovito, pogled v osrednji dnevni prostor

Fotografija, Celovito, pogled na stopnišče, ki smo ga delno modificirali
S prestavitvijo stene med hodnik in kotlovnico je dostop do utilitija postal bolj uporaben saj do njega ni potrebno vstopati skozi kotlovnico. Tudi vhod v dnevni WC smo prestavili tako, da je prostor bolje izkoriščen in funkcionalen z udobno velikim tušem v našem, zdaj že priljubljenem materialu, microtoppingu.

Fotografija, Celovito, pogled v dnevni WC
Delovna soba je v pritličju, vanjo pa se vstopa iz vhodne veže, tako da je popolnoma ločena od drugega dogajanja v hiši. To izolirano delovno okolje je še posebno praktično če je v hiši veliko otroškega živ žav-a. Pa tudi sicer je praktično, da poslovni obiskovalci ne vstopajo v pisarno iz privatnih prostorov.

Fotografija, Celovito, pogled v delovno sobo
Najbolj od vsega pa nas veseli, da je družina s svojim novim domom nadvse zadovoljna. Zdaj imajo vse, kar potrebujejo in kar so si želeli. Celo tako ‘luštno’ jim je, da so najraje kar doma. 🙂
