Iskanje prvega stanovanja je lahko za mlado družino precej stresno početje. Tako za mlade, kot tudi za njihove starše, ki jim pri tem finančno ali kako drugače pomagajo. Cene novih nepremičnin so pogosto nerazumno visoke, na drugi strani pa vemo za veliko starejših in predimenzioniranih, ki že dolga leta ostajajo (napol) prazne. Z dobro idejo in premišljenim načrtovanjem pa lahko v prijetno bivališče spremenimo na videz še tako neobičajen prostor.
O PROJEKTU
Proračun: 110.000 EUR
Načrtovanje: 6 mesecev
Čas prenove: 6 mesecev
Leto: 2016


Tokrat predstavljamo primer, kako si je mlada družina svoj dom ustvarila kar v nekdanji očetovi garaži za avtodom. Med našo ekipo in bodočima lastnikoma je prišlo do prave sinergije in tako je nastal dom, na katerega smo ponosni oboji.
“Pred dvema mesecema smo se preselili v novo stanovanje. Gradnja stanovanja je finančni in organizacijski zalogaj, ampak ko gledam nazaj, je bil morda nek drug strah še bolj prisoten – misel, da se na koncu koncev v stanovanju najina družina ne bo dobro počutila. Pri tem ne mislim samo na praktične vidike opremljanja – ali imamo dovolj omar, dovolj svetlobe in ali so stikala na pravem mestu, čeprav je tudi to seveda pomembno – ampak bolj na to, če tako končni izdelek kot tudi proces, kako smo do njega prišli, odražata našo kreativnost, ideje in vrednote.”
“Pred dvema mesecema smo se preselili v novo stanovanje. Gradnja stanovanja je finančni in organizacijski zalogaj, ampak ko gledam nazaj, je bil morda nek drug strah še bolj prisoten – misel, da se na koncu koncev v stanovanju najina družina ne bo dobro počutila. Pri tem ne mislim samo na praktične vidike opremljanja – ali imamo dovolj omar, dovolj svetlobe in ali so stikala na pravem mestu, čeprav je tudi to seveda pomembno – ampak bolj na to, če tako končni izdelek kot tudi proces, kako smo do njega prišli, odražata našo kreativnost, ideje in vrednote.”

Garaža pred začetkom del, avtodom je že zavzel svojo novo pozicijo. (Foto: Celovito.si)
“Materialno okolje, v katerem preživimo večino našega časa, je pomemben del družinskega življenja in s še enim otrokom na poti sem imel občutek, da si oba z Anjo res zelo želiva, da prenova teče gladko, čeprav sva si na glas zatrjevala, da sva pripravljena na vse komplikacije in ovire.
Ko sva začela iskati arhitekturno podjetje, sva hitro opazila logotip Celovito, verjetno zato, ker so imeli privlačne slike na družabnih omrežjih in svojem blogu, predvsem pa, ker so imeli nepretenciozen in topel način komunikacije. Hitro sva se odločila za njih – čeprav običajno vse večje izdatke temeljito premisliva in raziskujeva najugodnejšo ponudbo, sva se po uvodnem sestanku za arhitekte odločila že po nekaj dneh in dveh kratkih pogovorih.”
“Materialno okolje, v katerem preživimo večino našega časa, je pomemben del družinskega življenja in s še enim otrokom na poti sem imel občutek, da si oba z Anjo res zelo želiva, da prenova teče gladko, čeprav sva si na glas zatrjevala, da sva pripravljena na vse komplikacije in ovire.
Ko sva začela iskati arhitekturno podjetje, sva hitro opazila logotip Celovito, verjetno zato, ker so imeli privlačne slike na družabnih omrežjih in svojem blogu, predvsem pa, ker so imeli nepretenciozen in topel način komunikacije. Hitro sva se odločila za njih – čeprav običajno vse večje izdatke temeljito premisliva in raziskujeva najugodnejšo ponudbo, sva se po uvodnem sestanku za arhitekte odločila že po nekaj dneh in dveh kratkih pogovorih.”

Garaža pred prenovo. Vod z dvižnimi vrati in pogled iz nasprotne smeri. (Foto: Celovito.si)

Nekdanja kotlovnica z nekoliko nižjim stropom od preostalega dela garaže. (Foto: Celovito.si)
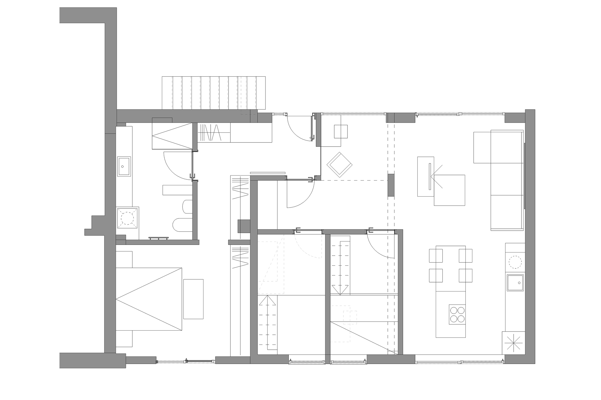
Pri načrtovanju smo izhajali predvsem iz tega, da je treba izkoristiti potencial prostora: višino stropa in velike odprtine za okna oziroma vrata. S premišljenimi rešitvami smo dosegli, da se bodo prostori skozi čas prilagajali odraščanju otrok. Visok strop in garažno-industrijski videz sta narekovala tudi končno podobo stanovanjskega interierja, ki spominja na loft. Obdržali smo nekatere “garažne” elemente, kakršna sta recimo betonski strop in steber v osrednjem dnevnem prostoru.
Izbrani videz poudarjajo tudi skrbno izbrani materiali in elementi, kot so kovinske lestve in ročaji za lažji dostop do podesta v dnevnem prostoru, cementni microtopping na tleh predprostora in kopalnice ter svetila in vidne električne napeljave. Nadometne električne inštalacije so nam omogočile, da je betonski strop ostal nedotaknjen, saj ni bilo potrebno dolbsti utorov, črni tekstilni kabli pa ustvarijo videz, zaradi katerega se naš pogled rad ustavi na stropu. V spalnici smo nad posteljo iz njih ustvarili zanimiv in igriv vzorec, ki ga lastnika lahko glede na trenutno inspiracijo tudi spreminjata.
“Zaupanje intuiciji se nama je izplačalo. Jure, Ajda in njuna ekipa sta poslušala najine želje, a jih hkrati s svojimi izkušnjami izboljšala, da sva na koncu dobila točno tako stanovanje, kot sva si želela, ne pa zgolj takega, kot sva ga znala opisati v začetnih pogovorih. Dali so nama čas in naredili veliko iteracij tako pri osnovnih tlorisih kot pri designu notranje opreme, na vsakem koraku pa smo imeli na voljo fotorealistične renderje, ki močno olajšajo načrtovanje in sprejemanje odločitev.”
“Zaupanje intuiciji se nama je izplačalo. Jure, Ajda in njuna ekipa sta poslušala najine želje, a jih hkrati s svojimi izkušnjami izboljšala, da sva na koncu dobila točno tako stanovanje, kot sva si želela, ne pa zgolj takega, kot sva ga znala opisati v začetnih pogovorih. Dali so nama čas in naredili veliko iteracij tako pri osnovnih tlorisih kot pri designu notranje opreme, na vsakem koraku pa smo imeli na voljo fotorealistične renderje, ki močno olajšajo načrtovanje in sprejemanje odločitev.”

Tam kjer je bila nekdaj kotlovnica je sedaj spalnica.
Na dobrih osemdesetih kvadratih pokrite površine smo tako ustvarili prostoren dnevni prostor s kuhinjo, jedilnico, televizijskim kotičkom in podestom, ki lahko rabi za umik na samo ali pa za igro otrok. Takoj ob vhodu je delovni kotiček, ki se nahaja pod podestom. Otroški sobi sta sicer majhni, vendar smo izkoristili višino prostora in otrokoma zagotovili vse potrebne elemente. Čeprav smo v sobah uporabili tipske omare, smo izkoristili vsak kotiček in tako pridobili še več shranjevalnih površin.
“Poleg kreativne plati je bila odlična tudi poslovna – končna cena je bila točno v okvirih napovedanega predračuna oziroma so bile vse deviacije jasno opredeljene, ko sva na lastno pest primerjala njihovo ceno z drugimi dobavitelji, so bile njihove celo malo nižje, in v vseh stikih s podizvajalci so zastopali naše interese, da se nama ni bilo treba “mazati rok”. In ker so Celovito tako avtorji projektne ideje kot njeni izvajalci, za njo stojijo in jo lažje spremenijo v resničnost.”
“Poleg kreativne plati je bila odlična tudi poslovna – končna cena je bila točno v okvirih napovedanega predračuna oziroma so bile vse deviacije jasno opredeljene, ko sva na lastno pest primerjala njihovo ceno z drugimi dobavitelji, so bile njihove celo malo nižje, in v vseh stikih s podizvajalci so zastopali naše interese, da se nama ni bilo treba “mazati rok”. In ker so Celovito tako avtorji projektne ideje kot njeni izvajalci, za njo stojijo in jo lažje spremenijo v resničnost.”

Kopalnica v kombinaciji lesa in betonskega videza.
Nižji strop je le v spalnici in kopalnici, saj je se je v tem delu včasih nahajala kotlovnica, ki smo jo prestavili v sosednji prostor. Ker nismo hoteli izgubiti še dodatnih centimetrov višine, je ta del izoliran s posebno tankoslojno izolacijo.
Tudi v teh prostorih smo vztrajali pri industrijskem videzu. Kopalnica je narejena v kombinaciji microtoppinga in naravnega lesa, v spalnici pa smo, kot je bilo že omenjeno, namenoma izpostavili električno napeljavo.
“Prišli smo na konec, stanovanje je super in popolnoma sva zadovoljna s svojo odločitvijo. Kakšno olajšanje, da je to spomin, ki ga imamo na gradnjo našega doma.”
“Prišli smo na konec, stanovanje je super in popolnoma sva zadovoljna s svojo odločitvijo. Kakšno olajšanje, da je to spomin, ki ga imamo na gradnjo našega doma.”
Video
Galerija


























