Naše bivanjske potrebe se s časom spreminjajo in tudi naš dom se mora temu prilagajati. Na nas se je obrnil mladi par, ki je pričakoval svojega prvega otroka. Takšna prelomnica v življenju potrebuje temeljit razmislek o prenovi in preureditvi stanovanja. Kako ga prilagoditi prihajajočemu novemu članu, sploh če prostora ni na pretek? Z otrokovim odraščanjem mora stanovanje omogočati tudi spremembe, ki bodo odgovarjale različnim fazam odraščanja, zato je potrebno pri celovitih prenovah misliti daleč vnaprej.
O PROJEKTU
Proračun: 58.000 EUR
Načrtovanje: 7 mesecev
Čas obnove: 6 mesecev
Leto: 2019


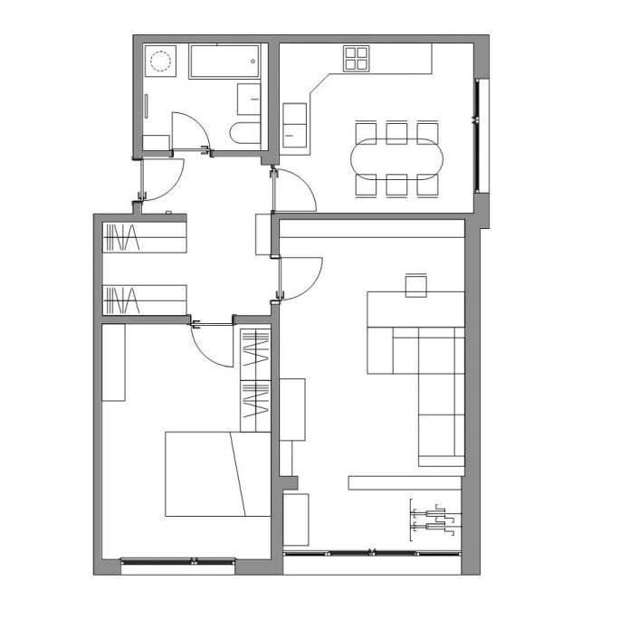
Tloris stanovanja pred in po prenovi.
Stanovanje v stolpnici pod Golovcem je imelo samo eno spalnico, dnevna soba in kuhinja pa sta bili ločeni. Da bi lahko uredili otroško sobo, smo kuhinjo z jedilnico prestavili v dnevno sobo. Prestavitve vodovodnih instalacij v blokih nikdar niso lahka naloga. Kljub temu, da je šlo zelo na tesno, nam je z našimi izkušenimi podizvajalci uspelo prestaviti inštalacije na novo lokacijo, tako nam je uspelo ustvariti enoten prostor.
Ker je dnevna soba sedaj postala hkrati še jedilnica in kuhinja, bi bil prostor lahko hitro preveč natrpan. Mlada starša sta namreč glasbenika, zato potrebujeta dovolj prostora tudi za glasbila in vadbo. Obenem smo morali v prostor umestiti tudi pisalno mizo in tiskalnik. Ob tako dolgem seznamu funkcij za samo en prostor smo se potrudili, da ne bi bil preveč napolnjen. Dnevni prostor mora biti najprej sproščen prostor za skupne trenutke, prostor veselja in smeha. Zato smo ga opremili z mislijo na toplino in svežino. Prostor, ki skrije vse, česar ne potrebuješ v omare. Tako je tiskalnik našel svoje mesto v predalu in se prikaže samo takrat, ko ga uporabljaš.


Dnevna soba pred in po prenovi.
Z enakimi mislimi smo se lotili tudi ostalih prostorov. Kopalnica je bila, kot je to običajno v blokovskih stanovanjih, (pre)majhna. Stolpnica je bila zgrajena v časih, ko so bile zahteve in standardni bistveno drugačni. Zato je tudi kopalnica doživela popolno preureditev. Kopalna kad je odšla na smetišče, zamenjal jo je ‘walk-in’ tuš brez kadi, pralni in sušilni stroj ter omara za čistila. Ker je prostora za tuš ostalo dokaj malo, smo rešitev našli v premičnem steklu ki, kadar je odprto, poveča tuš prostor in prepreči pršenje po kopalnici. Ko tuša ne uporabljamo pa vrata lahko zapremo in zato ne zavzamejo skoraj nič prostora. Prostor je tako maksimalno izkoriščen.

Opisana prenova stanovanja je lep primer, kako lahko s kreativnimi rešitvami in ne pretiranimi stroški tudi na prvi pogled majhne prostore preuredimo v prijeten in funkcionalen dom. Zato je potrebno dovolj premisleka in natančno načrtovanje, kajti, kot pravi pregovor ‘hudič se skriva v podrobnostih’. Izredno pomembna je seveda tudi sama izvedba. Obrtniki morajo biti natančni, se držati rokov in vsi vpleteni v obnovo morajo dobro sodelovati med seboj. Vezni člen je arhitekt, ki išče način, da vse želje in potrebe lastnikov splete v uspešno zgodbo in jim s tem uresniči njihove želje.
Za konec pa še nekaj besed naročnikov, katerim se najlepše zahvaljujemo za zaupanje!
“Zelo smo zadovoljni v prenovljenem stanovanju. Predvsem s končnim izgledom, ki je celovit in občutkom, da imamo več prostora kot prej. Stanovanje je tudi bolj svetlo in prijazno kot prej. Res super so vrata in okna. Parket daje občutek domačnosti in topline in sva zadovoljna z izbiro.
Odlično opravljeno delo. Hvala izvrstni ekipi Celovito, predvsem Petru in Ajdi za vse ideje in vodenje projekta. In za to, da lahko uživamo v našem novem, čudovitem stanovanju.”
Galerija projekta:






















