Tričlanska družina z Gorenjske, ki je do nedavnega živela v povprečnem blokovskem naselju, si je že dolgo želela novega, toplega doma. Par z zdaj odraslo hčerko je že od nekdaj sanjaril o tem, da bi si nekega dne uredil svoj »sanjski« dom. Realnost pa v življenju ni vedno skladna z željami. Njune selitve so se vedno zgodile hitro, tako da časa pa tudi denarja za temeljitejšo notranjo ureditev nikoli ni bilo. Poleg tega je njegova služba takšna, da je veliko časa odsoten, ona pa si ob službi in skrbi za otroka tudi ni želela greniti življenja s prenovami.
O PROJEKTU
Proračun: 75.000 EUR
Načrtovanje: 6 mesecev
Čas prenove: 4 mesece
Leto: 2015


“Največji zalogaj pred prenovo stanovanja je bila prav gotovo izbira podjetja. Vedeli smo, da sami ne bomo zmogli in da rabimo pomoč, a koga izbrati. Potem smo na družabnem omrežju odkrili Celovito. Vaša predstavitev, način delovanja in projekti, ki ste jih predstavljali v slogu prej in potem, so nam bili všeč, zato smo tvegali in izbrali vas. Iskali smo celovito rešitev od ideje do izvedbe in našli smo vas, Celovito. Ena od skrbi, preden so zadeve stekle, je bila tudi, kako bomo sodelovali. Se bomo razumeli? Boste razumeli, kaj želimo, kaj nam je všeč? Se bomo poslušali in slišali? Že po prvih stikih so začetne skrbi odpadle, vzpostavili smo iskren stik in sodelovanje je bilo zgledno vse do zaključka projekta.”
Ampak zgodilo se je, kakor pravijo – kdor čaka, dočaka. Tako je prišel tudi njun čas. Čas, ko sta si lahko privoščila nakup in opremo novega stanovanja. In kar je najpomembneje: nikamor se jima ni mudilo, lahko sta si vzela čas za temeljit premislek in pri tem upoštevala obilico detajlov, ki so se jima vedno zdeli pomembni.
Njihov novi dom, ki ga tokrat predstavljamo, smo v celoti prenovili. Lokacija in kvadratura novega stanovanja sta jima zelo ustrezali, manj pa jima je bila všeč razporeditev in oprema prostorov.
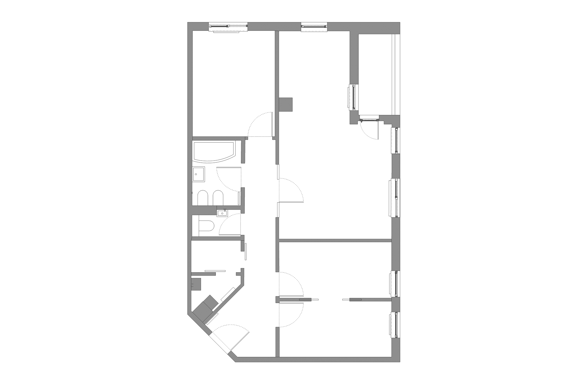
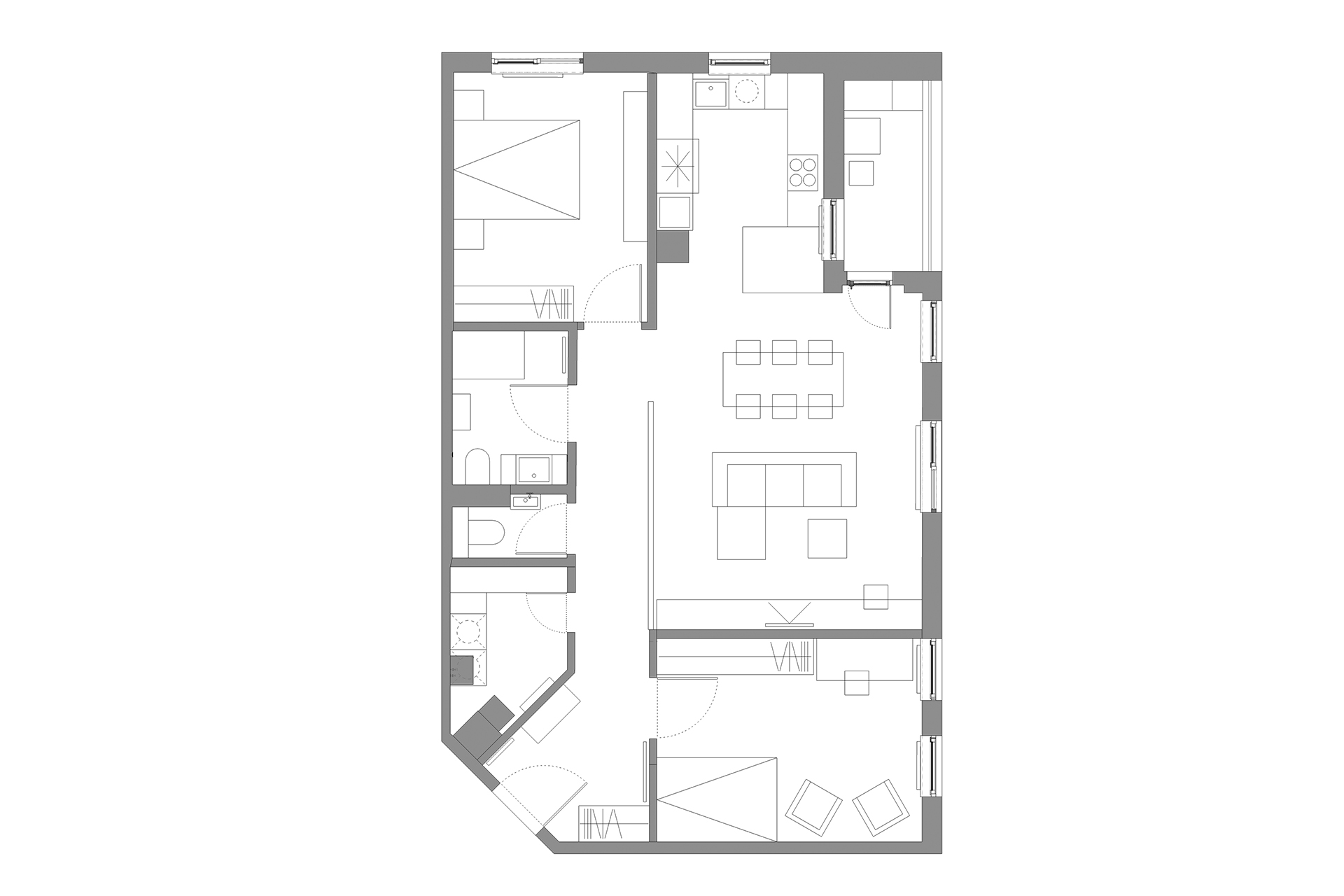
Po temeljitem razmisleku in dogovoru z bodočimi stanovalci smo tloris stanovanja temeljito prevetrili in prostore prilagodili potrebam družine.


Dnevni prostor prej in potem.
Tako smo steno med dnevno dobo in hodnikom nadomestili s stekleno pregrado z vgrajenimi lesenimi policami. Dnevni prostor smo tako odprli, da je postal bolj zračen, steklena stena pa vsaj delno zakrije vhode v shrambo, stranišče in kopalnico.
Steno med nekdanjima otroškima sobama smo podrli in tako dobili prostorno sobo za mlado študentko. Ker je pri načrtovanju celostne prenove vse potrebno vnaprej dobro domisliti, smo predvideli tudi prihodnji namen “otroške sobe”. Ko bo prišel čas in bo dekle odšlo na svoje, bo ta soba najbrž postala delovna soba za enega izmed staršev.
Tudi v shrambi smo podrli vmesno steno in iz nje naredili priročno kamrico ‘utility’. S povečanjem volumna je prostor pridobil tudi na uporabnosti.
Pri načrtovanju pohištva in ostale opreme po meri smo s stranko izbrali bolj klasičen slog s pridihom modernega, takšen, kot je všeč vsem trem družinskim članom. Želeli so si sodoben, vendar ne zelo moderen slog, ki jim bo nudil občutek topline in domačnosti.


Kuhinja pred in po prenovi.
V kuhinji, kopalnici, na stranišču in v shrambi stene ščitijo in obenem krasijo klasične a elegantne metro ploščice (subway tiles). Občutek domačnosti smo ustvarili s tradicionalno oblikovano kuhinjo z velikim keramičnim pomivalnim koritom. Čeprav je videz kuhinje zelo klasičen, pa ima vse, kar potrebuje moderna kuhinja. Kuhinjske fronte smo obarvali v sivo-modro, ki je obenem tradicionalna in trendovska barva. Največ domačnosti prostoru zagotovo dajejo tlaki. Izbrali smo parket iz krtačenega in oljenega hrasta, ki zaradi svoje obdelave in vidnih grč deluje rustikalno, njegova topla barva pa daje topel ton celemu stanovanju.
Večina izbranega pohištva je narejenega po meri, nekaj kosov pa je tipskih. Pri načrtovanju je bilo naše osnovno vodilo, da mora biti kakovost na prvem mestu, zato je naš mizar uporabil le najboljše materiale. Poenotena oprema naredi stanovanje tudi prostornejše.
Medtem se je družina že vselila v svoj nov dom, v katerem se počutijo izvrstno. Vse je tako kot so si želeli, vse je kakor pravijo – v nulo dobro.

Kopalnica pred in po prenovi.
“Za nas je bil projekt prenove zahteven, vendar ste nas elegantno in brez stresa vodili od idejnih projektov do prvih rešitev in končnega izvedbenega načrta. Tudi med realizacijo ni bilo zapletov, vse se je reševalo hitro in sproti, še posebej pa smo veseli, ker je prenova, kljub nekaj pritožbam sostanovalcev zaradi hrupa in drugih malenkosti na začetku, potekala brezhibno in brez motenj. Kar je, to vem iz izkušenj, velika redkost, ko se prenavlja v večstanovanjskih stavbah. Brez zadržkov bi vaše podjetje priporočila tako prijateljem kot družini.”
Galerija
Video




























