Pred časom se je na nas obrnila družina z dvema majhnima otrokoma, natrpanim urnikom in eno skromno željo. Želeli so si prenove dnevnega prostora tako, da bodo imeli kam pospraviti številne reči (igrače, športne torbe itd.), zaradi katerih je prostor deloval neurejen in natrpan. Z novo ureditvijo dnevne sobe z jedilnico je družina predvsem pridobila veliko prostora za shranjevanje in bolj minimalističen videz, katerega sta si naročnika tudi zaželela.
O PROJEKTU
Proračun: 12.600 EUR
Načrtovanje: 3 mesece
Čas prenove: 1 mesec
Leto: 2017


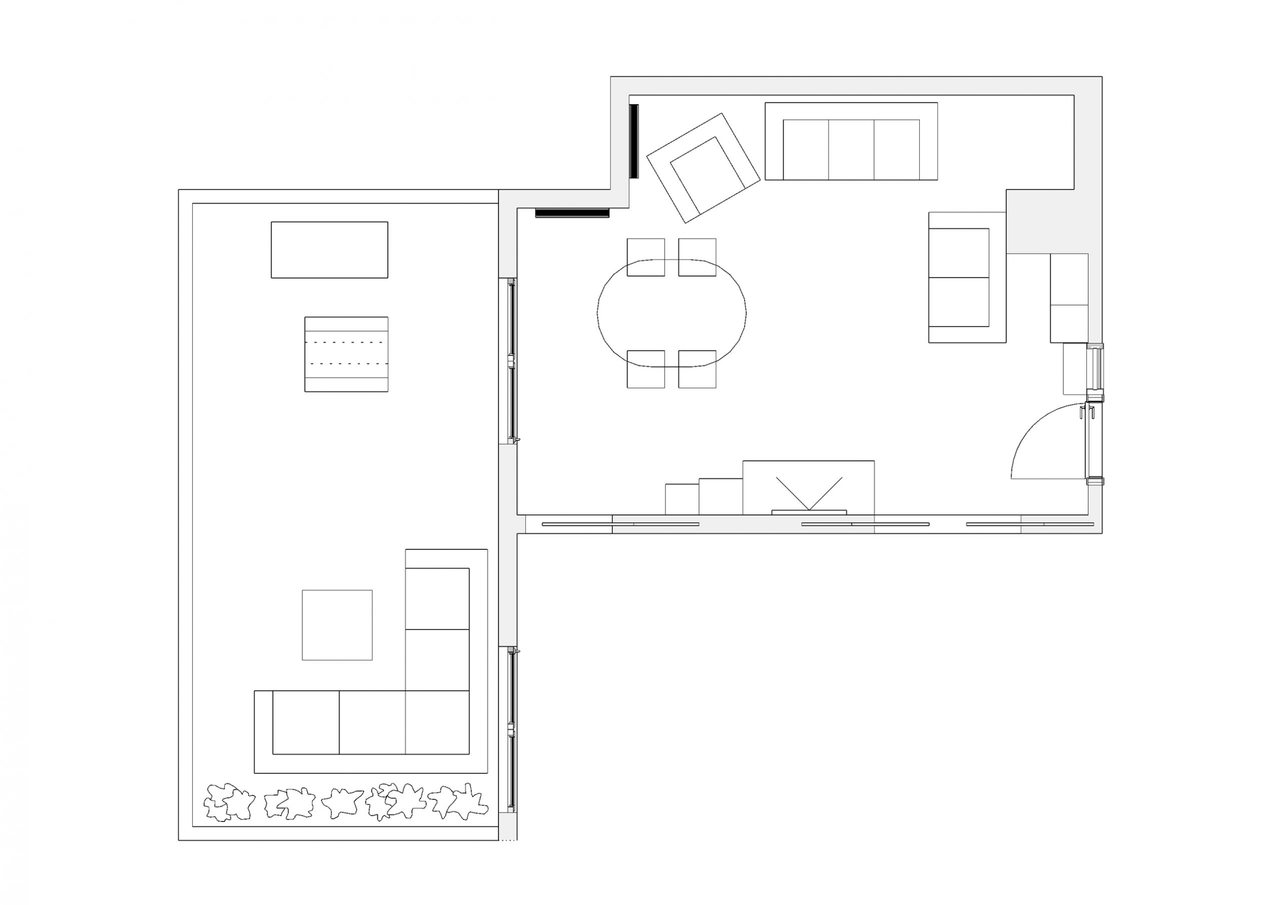
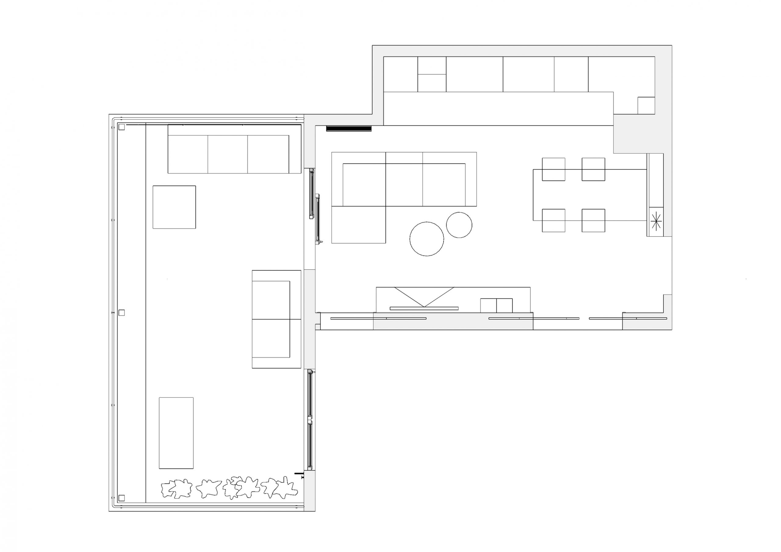
Tloris pred in po prenovi.


Njihov prejšnji dnevni prostor je bil opremljen z omarami različnih dimenzij, sedežna garnitura je bila sestavljena iz treh kosov in nekako razmetana po prostoru. V kotu so bile nakopičene igrače, na odprtih policah pa veliko predmetov.
Glavni cilj prenove je bil zagotoviti prostor za shranjevanje. Le-tega sta naročnika nameravala ustvariti z dodatnim prostorom (skladiščem), ki bi ga od dnevne sobe ločila s predelno steno postavljeno na rob niše. To bi prostor precej zmanjšalo, obenem pa bi dobili še ena vrata, katerih je bilo v tako majhnem prostoru že takrat preveč. Namesto tega smo v niši načrtovali omare s podestom, v katerem so skriti predali. Podest obenem služi kot prostor za igro in posedanje. Del omare smo namenili odprtim policam za knjige, ki prostor naredijo bolj domač, hkrati pa ustvarijo dinamiko v prostoru. V novi ureditvi smo odstranili tudi vrata na prehodu med dnevno sobo in hodnikom, saj so bila le-ta večinoma odprta.

Jedilno mizo smo prestavili bližje kuhinji, kar je iz vidika funkcionalnosti vsekakor bolj smiselno. Ob jedilni mizi smo načrtovali visoko ozko omaro, v kateri je tik nad mizo manjši predal za shranjevanje drobnih stvari, ki jih pri mizi večkrat potrebujemo (zobotrebci, papirnate serviete, podstavek za vročo posodo, odpirač za steklenice ipd.). Naročnika sta velika ljubitelja vina, zato sta želela hladilno vinsko vitrino. Zanjo smo našli prostor prav v tej omari ob jedilni mizi, nad njo pa je prostor za shranjevanje kozarcev in žganih pijač.


Sedežno garnituro smo umestili bližje balkonskim vratom, saj je od tukaj najboljši pogled na televizijo. Televizija stoji na minimalistični omarici, v kateri se skriva tudi subwoofer. Ta na eni strani ne more bit popolnoma zaprt, na drugi strani pa ga ne želimo gledati, zato smo omarico oblikovali tako, da je viden samo z desne strani. Nad omarico za televizijo je le nekaj poličk za izbrane predmete in dekoracijo.

Naročnika sta imela tudi željo po ureditvi terase. Največji problem jim je predstavljalo sonce, ki se je na zahodni strani spustilo tako nizko, da je bilo na terasi nemogoče posedati. Rešitev se je pokazala v obliki stenske tende. Na terasi smo predvideli tudi lesen tlak, ki smo ga položili kar čez obstoječe keramične ploščice. Ob robu terase smo predlagali prodno kamenje, okrasne grmičke in vgradne talne svetilke. Naročnika sta teraso po našem predlogu tudi uredila.

In zakaj se nam minamalizem zdi tako “fajn”? Če imate ali ste imeli majhne otroke ali pa imate zgolj natrpan urnik, potem veste, da dom enostavno ne more biti vedno pospravljen. Če je v prostoru že v osnovi veliko stvari (številni različni kosi pohištva, veliko predmetov na odprtih policah, barvne stene, več slik na stenah ipd.), bo prostor že ob manjšem neredu deloval nepospravljeno. Seveda ni nič narobe, če ni vse na svojem mestu, a če je prostor zasnovan minimalistično, si lahko tega nereda privoščite več. In še nekaj je. Na odprtih policah se sčasoma nabere mnogo stvari, ki jih v množici predmetov sploh zares ne opazimo. Zakaj ne bi večine stvari pospravili v zaprte omare, na police pa postavili le nekaj lepih, nam ljubih predmetov? Saj jih sčasoma lahko zamenjamo, kajne?































