Človek skozi različna življenjska obdobja odraža različne potrebe, ki so posledica interesov posameznega obdobja. Ob tem se nam spreminja okus, spreminjajo se nam interesi, s tem pa tudi način življenja in temu prilagojen vsakdan. Okolje, v katerem živimo, je zato izjemnega pomena. Pravilno prilagojeno bivalno okolje nam olajša delovanje in omogoča udobno bivanje.
Življenjskim spremembam je potrebno prilagoditi tudi bivalno okolje. Vsako stanovanje ali hiša ima za seboj zgodbo, ki se je odvijala v letih uporabe. Skozi življenjsko obdobje nepremičnine se njena zasnova spreminja in prilagaja različnim potrebam.
Cilji so različni, tako v življenju kot pri prenovi. Ni cilj vsake prenove povečanje števila prostorov, nekatere prenove število prostorov celo zmanjšajo. Površina stanovanja je okvir, znotraj katerega se odvijajo spremembe in tako je tudi pri prenovi. Znotraj obodnih sten se tloris prilagaja stanovalcem in njihovemu načinu življenja.
Tokrat smo celostno prenovili stanovanje v bližini Domžal, ki z novo zasnovo in podobo ustreza novim potrebam lastnika.
O PROJEKTU
Vrednost GOI del: 35.000 EUR
Vrednost opreme: 60.000 EUR
Načrtovanje: 5 mesecev
Čas prenove: 4 mesece
Leto: 2021

Vsako stanovanje ima potencial, ki ga je potrebno pravilno prepoznati. Pri prenovi tega stanovanja smo poiskali prednosti in slabosti obstoječega stanja, se podrobno pogovorili z lastnikom ter pripravili različne variante, kako bi bilo stanovanje mogoče prenoviti. Lastnik stanovanja prvotno ni bil prepričan, da bi v stanovanju sploh dolgoročno ostal, saj si ni predstavljal, kaj je iz stanovanja sploh mogoče narediti. V naših idejnih predlogih vedno pripravimo več različnih rešitev – eno z minimalnimi posegi, eno, pri kateri pustimo domišljiji prosto pot in eno, ki je nekje vmes. In tokrat je zmagala domišljija. V stanovanju, ki je sprva bilo namenjeno za prehoden čas, si je tako uredil stalno domovanje.


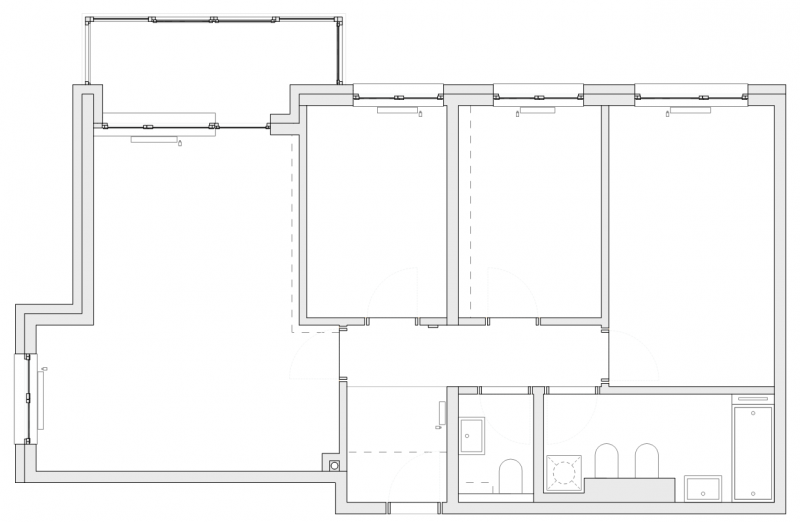
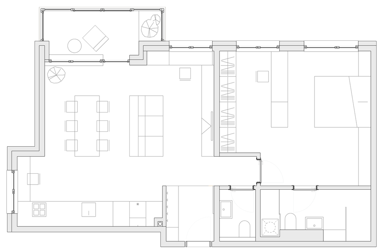
Tloris pred in po prenovi.
V obstoječem stanju je stanovanje obsegalo tri sobe, ki jih lastnik ni potreboval, kopalnico z ločenim wc-jem, hodnik s predsobo in dnevni prostor z izhodom na balkon. Dnevni prostor je bil dostopen preko hodnika z dvojimi vrati, zaradi česar deluje manjši, sama kuhinja pa je imela pomanjkanje svetlobe.
Cilj prenove je bil preurediti stanovanje za bivanje dveh oseb z maksimalnim udobjem. Ob pregledu konstrukcije objekta smo ugotovili, da je v notranjosti stanovanja le ena nosilna stena. Pri prenovi smo tako tloris stanovanja sprostili, število prostorov zmanjšali na minimum in zasnovali dva velika prostora.


Dnevni prostor pred in po prenovi.
Dnevni prostor je del prostora, ki s prerazporeditvijo in odstranitvijo sten največ pridobi na prostornosti. Kuhinjska linija teče ob eni izmed sten in se zaključi z okensko nišo, kjer je oblikovana in umeščena zajtrkovalnica.
Vsi prostori z novo zasnovo pridobijo na velikosti in svetlobi, saj vsak prostor dobi dodatno okno, kar še dodatno poveča občutek prostornosti. Kuhinja in dnevni prostor se z balkonom navzven še podaljšata

Spalnica je po prenovi enoten prostor skupaj z garderobo in delovnim kotičkom, z odstranitvijo sten pa je postala tudi dobro osvetljena. Miza prostor navidezno zamejuje in subtilno loči garderobni in spalni del. Dodano je bilo oblazinjeno vzglavje v usnju, ki se kot material pojavlja tudi v dnevnem prostoru.


Spalnica pred in po ureditvi.
Oprema je oblikovana z mislijo sproščenega bivanja in maksimalnega udobja. Polna funkcionalnost prostorov, kot je kuhinja z delovnimi površinami, je zaradi narave stanovanja prikrita. Posamezni ambienti so premišljeno oblikovani, kot na primer zajtrkovalnica s pogledom na gore.
Po stanovanju so v različnih prostorih umeščeni delovni kotički, kar je v času epidemije še bolj aktualno.
Sanitarnim prostorom smo ohranili mesto tudi v novi zasnovi. Le-ti so sedaj ločeni, wc je povezan z dnevnim prostorom, medtem ko kopalnica pripada zgolj spalnici, z drsnimi vrati je ločen tudi utility.

Osnovna barvna shema je obsegala sivo in modro barvo s črnimi elementi. Materialna osnova je les, ki smo ji dodali sodoben material Fenix. Posamezni elementi so kovinski in usnjeni, v izbrani barvi konjaka.
Spodnja galerija prikazuje različne ambiente stanovanja po prenovi.

















