V ekipi Celovito nikoli nismo želeli biti podrejeni samo enemu stilu oblikovanja. Čeprav se trudimo izdelovati raznolike projekte, ki so čim bolj prilagojeni naročnikom in njihovim osebnim željam, se nam pogosto dogaja, da nas pokličejo stranke, ker so opazile enega naših projektov, ki jim je bil izredno všeč. Projekt, ki ga predstavljamo v nadaljevanju, je eden takšnih.
O PROJEKTU
Proračun: 60.000 EUR
Načrtovanje: 4 mesece
Čas prenove: 5 mesecev
Leto: 2020
Naročnici je bil izredno všeč stil in barvna paleta projekta ‘V pomladne barve odeto stanovanje’. Seveda pa je vsako stanovanje zgodba zase. Kako se torej lotiti prenove stanovanja? Za izhodišče smo vzeli zgoraj naveden projekt in stanovanje oblikovali glede na želje in življenjski slog naročnice.


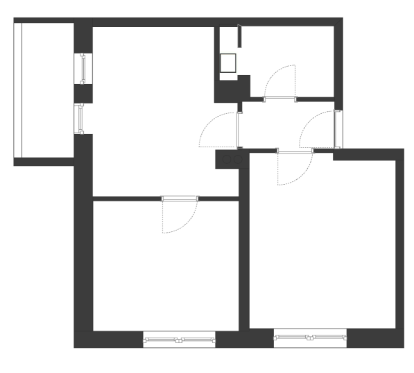
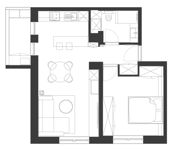
Tloris pred in po prenovi.
Stanovanje, ki smo ga tudi tokrat v celoti obnovili, se nahaja v središču Kranja, nedaleč od znamenitega vodnega stolpa. Približno 50 let staro stanovanje se nahaja v 3. nadstropju bloka. Ob nakupu je bilo v izredno slabem stanju in je komaj čakalo na temeljito prenovo in adaptacijo.


Kuhinja pred in po prenovi.
Prostorska razporeditev stanovanja prav tako ni bila ustrezna – majhna kuhinja z jedilnico in dnevna soba, ločena s predelno steno, sta kar klicali po medsebojni povezavi.


Dnevna soba pred in po prenovi.
Kopalnica z litoželezno kadjo, teraco tlakom in stenami pobarvanimi z oljnato barvo pa je prav tipično simbolizirala šestdeseta leta, ko je bil blok zgrajen.

Celovita prenova stanovanja je tako obsegala izvedbo vseh novih inštalacij vodovoda, kanalizacije in ogrevanja, zamenjavo vseh starih tlakov z novim hrastovim parketom, zamenjavo oken, notranjih in vhodnih vrat, kompletno obnovo kopalnice z oblogo iz microtoppinga, ter opremo stanovanja s pohištvom po meri, da so prostori maksimalno izkoriščeni. Pod oblikovanje notranje opreme se je tokrat podpisal Sašo Mulalič, ki je poskrbel za izvirne detajle in celostno podobo stanovanja.
Da pa ne bo ostalo le pri naših besedah je tu še mnenje naše naročnice:
Na tem mestu bi se naročnici radi še enkrat zahvalili za zaupanje pri celotni izvedbi projekta. V veselje nam je bilo sodelovati z njo.
“Ekipa Celovito se je držala dogovora. Do konca so se držali reka “what we promise, we deliver”. Posebej všeč mi je bila minimizacija lastnega časa. Realizacija projekta “na ključ” v dogovorjenem času, kvaliteti in obsegu. Ekipo Celovito priporočam zaradi profesionalnega pristopa, takrat ko prevzamejo projekt, stranka pozabi na njega (se vključuje samo po potrebi). Realiziran projekt je popolnoma enak dokumentu, ki je narejen v fazi načrtovanja.
Zadovoljstvo je delati z vami. Upam, da bomo še kdaj sodelovali :)”
Galerija projekta:

















